Sold STC

Sonas

Waterloo Bankfoot, Perth, PH1 4AW
Scroll

Sonas

Sonas

Waterloo Bankfoot, Perth, PH1 4AW

Offers Over £345,000

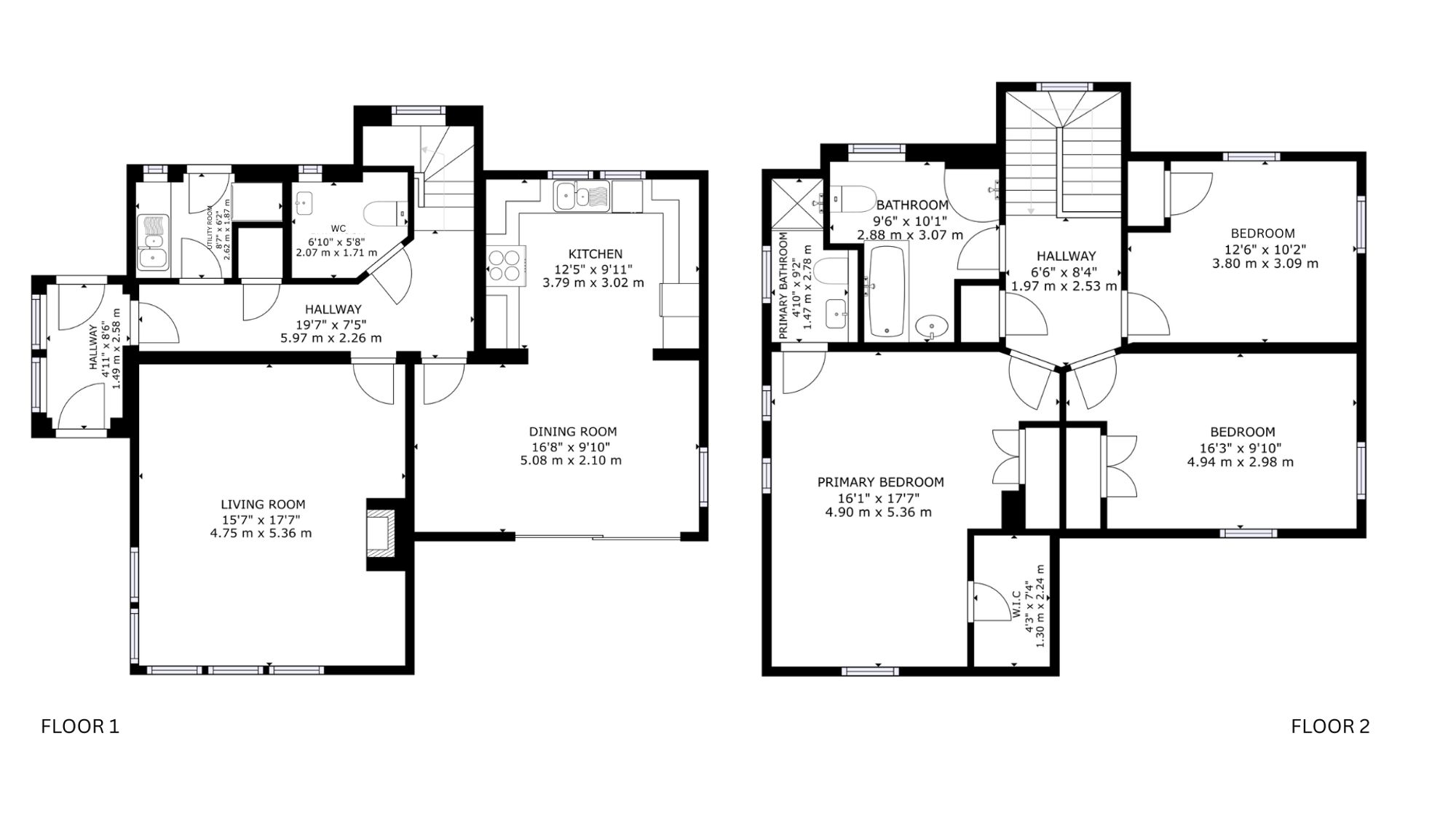
This detached house offers well-proportioned accommodation arranged over two floors, providing comfortable and practical family living within a pleasant rural setting. The property is entered through an entrance hall which leads into a central hallway, giving access to the main ground floor accommodation. The living room provides a bright and comfortable space for everyday living and relaxation. Also on the ground floor is a convenient WC and a useful utility room offering additional storage and laundry facilities.

To the rear of the property there is a spacious open plan kitchen and dining room which forms the main hub of the home. This area provides ample space for both cooking and dining and is well suited to modern family life as well as entertaining guests. The layout allows for good natural light and an open, sociable atmosphere.

The first floor accommodation is accessed via a landing which leads to three well-proportioned bedrooms and a family bathroom. The principal bedroom benefits from an ensuite shower room, providing additional convenience and privacy. The remaining bedrooms are suitable for family members, guests, or potential use as a home office or study.

The property is located in the rural area of Waterloo, close to the village of Bankfoot. The rear of the property enjoys open fields which contribute to a pleasant outlook and a sense of space and tranquillity. Surrounding properties are of mixed age and type, creating a varied residential setting. A range of local facilities and amenities can be found in the nearby village of Bankfoot, which is within reasonable commuting distance and provides access to everyday services and transport links.

Key Features

  • 3 Bedrooms
  • 3 Bathrooms
  • Detached House
  • Covered area approx. 1,625 sqft
  • Council Tax Band F
  • Parking Driveway
  • Garden

Interested in this Property?

Make an enquiry via email

"*" indicates required fields

This field is for validation purposes and should be left unchanged.
Please use valid format e.g. 07123456789, +44 7123456789, +447123456789 #123, (07123) 456 789, etc
GDPR Consent*

OR

Contact our local expert or request a callback

Nicola Dow
Email Nicola Dow Request A Callback

Request A Call Back

"*" indicates required fields

This field is for validation purposes and should be left unchanged.
Please use valid format e.g. 07123456789, +44 7123456789, +447123456789 #123, (07123) 456 789, etc
GDPR Consent*

Featured Properties

Your saved properties

clyde logo white

Property Alerts.

Stay one step ahead of the market. Register with us today to receive property alters before the portals.

Register your details and property criteria below, and we will send you updates about homes that match your search criteria.

Tip: You can add multiple options/criteria after registration.