84 Firhill Road, Flat 0/2, Firhill

Glasgow, G20 7AL
Scroll

84 Firhill Road, Flat 0/2, Firhill

84 Firhill Road, Flat 0/2, Firhill

Glasgow, G20 7AL

Offers Over £155,000

This extremely well presented, two bedroom flat is held within a modern, low rise building in a sought after pocket of Glasgow.

Firhill Road area is on the outskirts of the West End of Glasgow and has a collection of shops, supermarkets and cafes. The West End is a short walk/cycle where there is a wealth of bars and restaurants as well as Glasgow University.

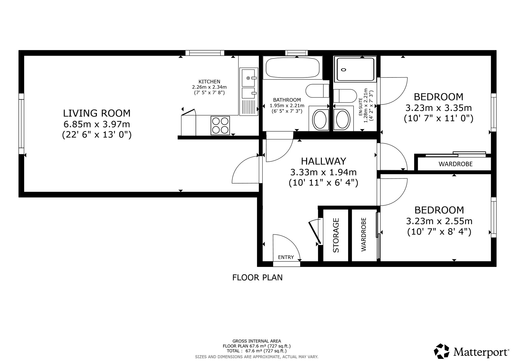
The home for sale is located on the ground floor and has been maintained to a fantastic standard by the current owners. The attached photographs, floor plan and HD video tour will give an indication to the size and layout of the flat. However, in brief the accommodation extends to; welcoming entrance hallway, bright and airy bay windowed living room with space for dining, a modern kitchen with base and wall mounted units, tiled splash back and appliances. Both bedrooms are large doubles with built in storage and the main bedroom benefits from an en-suite bathroom. The accommodation is completed by a main bathroom with three piece suite and shower over the bath. 

Key Features

  • 2 Bedrooms
  • 2 Bathrooms
  • Flat
  • Covered area approx. 753 sqft
  • Council Tax Band C
  • Parking Off street
  • Communal Garden

Interested in this Property?

Make an enquiry via email

"*" indicates required fields

This field is for validation purposes and should be left unchanged.
Please use valid format e.g. 07123456789, +44 7123456789, +447123456789 #123, (07123) 456 789, etc
GDPR Consent*

OR

Contact our local expert or request a callback

Rachel Dewar
t. 0141 212 7014
Email Rachel Dewar Request A Callback

Request A Call Back

"*" indicates required fields

This field is for validation purposes and should be left unchanged.
Please use valid format e.g. 07123456789, +44 7123456789, +447123456789 #123, (07123) 456 789, etc
GDPR Consent*

Featured Properties

Your saved properties

clyde logo white

Property Alerts.

Stay one step ahead of the market. Register with us today to receive property alters before the portals.

Register your details and property criteria below, and we will send you updates about homes that match your search criteria.

Tip: You can add multiple options/criteria after registration.