Sold STC

11 Ravenscliffe Drive

Giffnock, Glasgow, G46 7QR
Scroll

11 Ravenscliffe Drive

11 Ravenscliffe Drive

Giffnock, Glasgow, G46 7QR

Offers Over £370,000

**** CLOSING DATE THURSDAY 26TH MARCH 2026 @ 12 NOON **** Enjoying a continually sought-after address within the popular Giffnock pocket, and enhanced hugely by virtue of both a double-storey side and sizeable rear extension, this superb four bedroom home offers an ideal balance of family accommodation over two levels and is further complimented by a spacious ‘Monobloc’ driveway (which will accommodate three cars) as well as an enclosed rear garden. Ideally positioned just a short walk from Fenwick Road, where a host of local restaurants, shops and transport links can be found, Ravenscliffe Drive is also included within the desirable East-Renfrewshire catchment zone and will likely prove very appealing to families looking for a generational home.

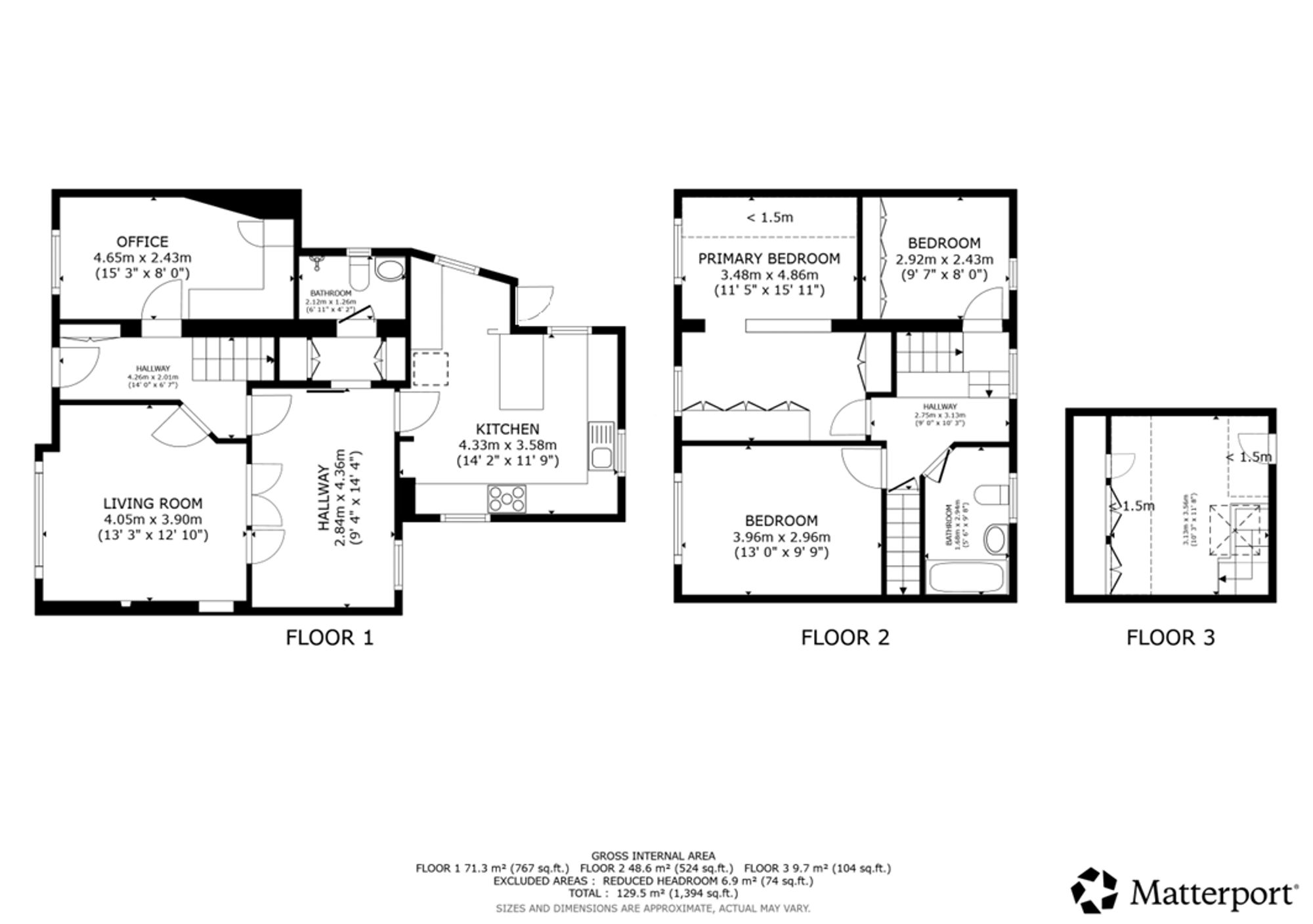
Immediately welcoming upon entry, the property is notably spacious and finished throughout in a fresh and neutral decorative tone. Our 3D Virtual Tours, HD Videos and Floorplans will provide a better idea of form and layout, however, a summary of the accommodation extends to; bright and practical entrance porch, reception hallway with ascending staircase and storage off, impressive formal lounge with feature fire and surround at focal point which opens via twin glass doors, optionally, in to a similarly spacious dining / family room, comprehensively fitted breakfasting kitchen with ample space for family dining, ground floor bedroom which might lend alternate purpose as a study and a re-fitted shower room hosting a modern suite and vanity storage.

The equally impressive upper floor of this home is largely dedicated to its three generously proportioned bedrooms, the principle of which boasts an extremely attractive split-level feature and all three providing significant fitted storage. There is also a modern family bathroom with three-piece suite, overhead shower attachment and ample vanity storage. Of further note is the superb floored and lined attic area which has been historically converted to create a highly practical additional storage / play space. This area is accessed by way of a fixed staircase which runs within a secondary corridor from the upper hallway and draws natural light from a sizeable ‘Velux’ style window.

As previously mentioned, the garden plot of this home also supports family life with considerable parking available within the spacious front garden and a superb and predominantly level area to the rear which has been fully enclosed to create the ideal child and pet friendly proposition. There is also a sizeable cellar in place which provides an excellent additional garden storage opportunity.

Key Features

  • 4 Bedrooms
  • 2 Bathrooms
  • Semi Detached House
  • Covered area approx. 1,453 sqft
  • Council Tax Band E
  • Parking Driveway

Interested in this Property?

Make an enquiry via email

"*" indicates required fields

This field is for validation purposes and should be left unchanged.
Please use valid format e.g. 07123456789, +44 7123456789, +447123456789 #123, (07123) 456 789, etc
GDPR Consent*

OR

Contact our local expert or request a callback

Ann Forbes
t. 0141 212 7029
Email Ann Forbes Request A Callback

Request A Call Back

"*" indicates required fields

This field is for validation purposes and should be left unchanged.
Please use valid format e.g. 07123456789, +44 7123456789, +447123456789 #123, (07123) 456 789, etc
GDPR Consent*

Featured Properties

Your saved properties

clyde logo white

Property Alerts.

Stay one step ahead of the market. Register with us today to receive property alters before the portals.

Register your details and property criteria below, and we will send you updates about homes that match your search criteria.

Tip: You can add multiple options/criteria after registration.