Sold STC

181 Dumbarton Road, Flat 1/2, Partick

Glasgow, G11 6AA
Scroll

181 Dumbarton Road, Flat 1/2, Partick

181 Dumbarton Road, Flat 1/2, Partick

Glasgow, G11 6AA

Offers Over £205,000

Located within an attractive modern development in central Partick - this extremely attractive two bedroom apartment offers very bright, comfortable living space within minutes walk of Glasgow University & all West End amenities and benefits from a private South facing garden/terrace.

The home for sale enjoys an extremely peaceful position and is held on Dumbarton Road, seconds away from Byres Road. This position offers rapid access to a broad selection of amenities including supermarkets, rail & underground stations, shops, fitness gyms etc. Glasgow University is within 1 mile of the property and therefore this property is likely to appeal to a students and professional staff who work at this renowned institution.

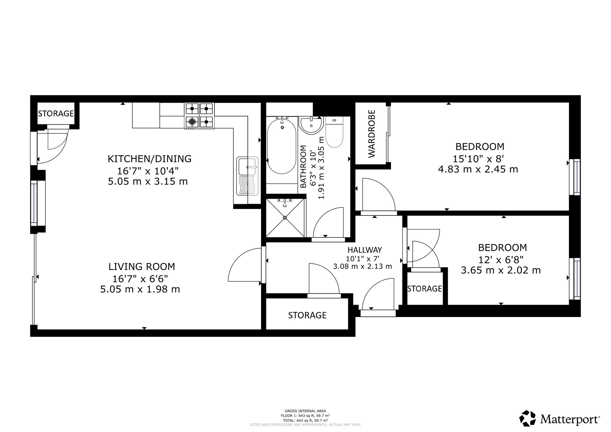
The building itself is accessed via a secure entry intercom system and the home for sale is positioned on the first floor. In brief the accommodation extends to; welcoming entrance hallway with storage off, a spacious living/dining/kitchen with floor to ceiling windows and doors leading to the South facing garden. The kitchen itself has base and wall mounted units with integrated appliances. There are two bedrooms with built in storage. The accommodation is completed by a main bathroom with four piece suite.

Key Features

  • 2 Bedrooms
  • 1 Bathroom
  • Flat
  • Covered area approx. 645 sqft
  • Council Tax Band D
  • Parking Permit
  • Communal Garden

Interested in this Property?

Make an enquiry via email

"*" indicates required fields

This field is for validation purposes and should be left unchanged.
Please use valid format e.g. 07123456789, +44 7123456789, +447123456789 #123, (07123) 456 789, etc
GDPR Consent*

OR

Contact our local expert or request a callback

Rachel Dewar
t. 0141 212 7014
Email Rachel Dewar Request A Callback

Request A Call Back

"*" indicates required fields

This field is for validation purposes and should be left unchanged.
Please use valid format e.g. 07123456789, +44 7123456789, +447123456789 #123, (07123) 456 789, etc
GDPR Consent*

Featured Properties

Your saved properties

clyde logo white

Property Alerts.

Stay one step ahead of the market. Register with us today to receive property alters before the portals.

Register your details and property criteria below, and we will send you updates about homes that match your search criteria.

Tip: You can add multiple options/criteria after registration.