Sold

Thornton House

Thorntonhall, G74 5AL
Scroll

Thornton House

Thornton House

Thorntonhall, G74 5AL

Offers Over £3,650,000

This substantial family home provides flawless, beautifully presented accommodation extending to over 13,500 sq ft, is situated within stunning landscaped gardens of approximately three acres, which includes a separate detached three bedroom gatehouse.

Without question, one of the finest homes to become available in recent times. This breathtaking mansionhouse and gatehouse provides generously proportioned and flexible accommodation which is finished to a specification and standard seldom seen today.

Main House

Built only 10 years ago and using the finest materials available, this spectacular small estate leaves nothing to be desired and provides extensive family accommodation in ‘as new’ condition throughout.

Although substantial in dimensions, the house has been perfectly designed for modern day living and provides comfortable easily maintained accommodation with every conceivable modern convenience.

The floorplans and video will give a better idea of form and layout, but only upon viewing will one fully appreciate the unprecedented quality and design of this spectacular home.

The house sits on the edge of Thorntonhall village within a private three acre plot, yet benefits from superb views across open countryside.

The pillared entrance gives access to two driveways, both with secure electric gates. The main driveway leads past the gatehouse and sweeps through formal lawns to the front of the main house, whilst the secondary driveway gives direct access to garaging. The large detached three car garage block has a seperate garden store, WC compartment and useful attic storage.

• Stunning galleried hall with sweeping stone staircase

• Five principal public rooms

• Fully equipped breakfasting kitchen with pantry

• Kitchen, principal ensuite bathroom and powder room by Clive Christian

• Swimming pool complex

• Fully equipped gymnasium

• Laundry room

• Home office

• Wine Cellar

• Two guest bedrooms both with ensuite shower rooms

• Galleried upper hall with study area

• Principal bedroom suite with en-suite bathroom and extensive dressing

• Second bedroom suite with private living room including integrated kitchen, ensuite bathroom and dressing room

• Three further double bedrooms, two with ensuites

• Large games room

• Home cinema room

• Extensive attic room

• Self contained central heating plant (CHP unit) self contained gas operated system which produces efficient electricity and heat for the house.

Grounds

The gardens have been professionally designed and landscaped, and comprise extensive manicured lawns complimented by specimen mature trees, shrubs, and pathways all with discreet lighting.

To rear is a stunning walled courtyard garden with central fountain and large terrace, all directly accessed from the main house and pool complex. Double wrought iron gates give access to the beautifully manicured orchard.

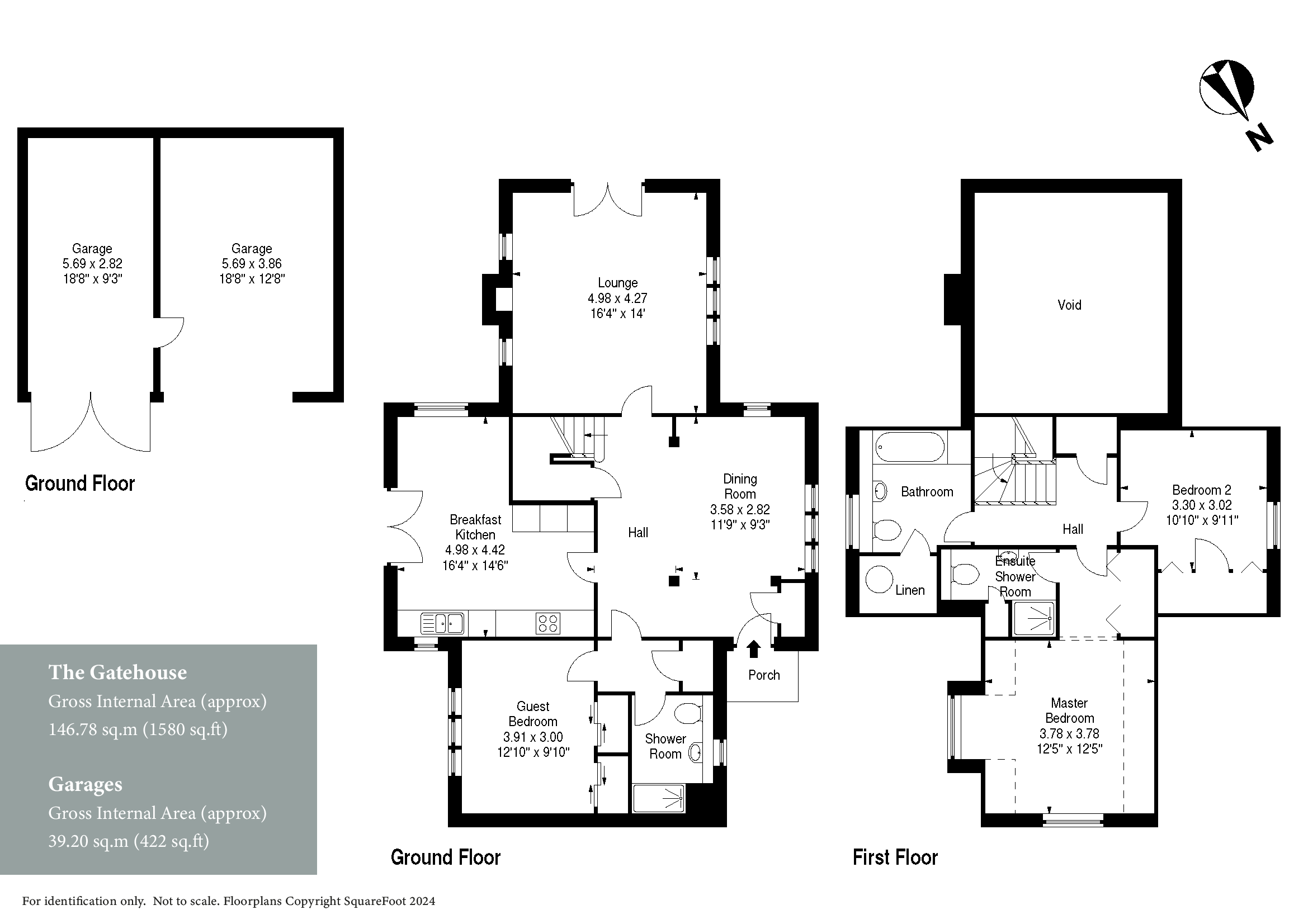
Gatehouse

The gatehouse is a delightful detached home of approximately 1600 sqft providing equally stunning accommodation with double height vaulted living room plus three bedrooms. This property has its own beautiful garden and attractive timber double garage.

• Delightful hall with open plan dining area

• Superb double height lounge with vaulted ceiling

• Breakfasting kitchen

• Three double bedrooms, master ensuite

• Two additional bathrooms

• Beautiful gardens with double garage

EPC Band B.

Key Features

  • Substantial family home
  • Over 13,000 sq ft of luxurious living space
  • Built using the finest materials
  • Breathtaking courtyard and orchard
  • Private pool complex with direct garden access
  • Fully equipped gym
  • Home cinema room
  • Private, gated entrance and dual driveway
  • Separate detached 3-bedroom gatehouse with beautiful garden grounds and own Garage

Interested in this Property?

Make an enquiry via email

"*" indicates required fields

This field is for validation purposes and should be left unchanged.
Please use valid format e.g. 07123456789, +44 7123456789, +447123456789 #123, (07123) 456 789, etc
GDPR Consent*

OR

Contact our local expert or request a callback

Marie Baines
t. 0141 212 7035
Email Marie Baines Request A Callback

Request A Call Back

"*" indicates required fields

This field is for validation purposes and should be left unchanged.
Please use valid format e.g. 07123456789, +44 7123456789, +447123456789 #123, (07123) 456 789, etc
GDPR Consent*

Featured Properties

Your saved properties

clyde logo white

Property Alerts.

Stay one step ahead of the market. Register with us today to receive property alters before the portals.

Register your details and property criteria below, and we will send you updates about homes that match your search criteria.

Tip: You can add multiple options/criteria after registration.