Sold

Myrtle Cottage Balkerach Street

Doune, FK16 6DE
Scroll

Myrtle Cottage Balkerach Street

Myrtle Cottage Balkerach Street

Doune, FK16 6DE

Offers Over £280,000

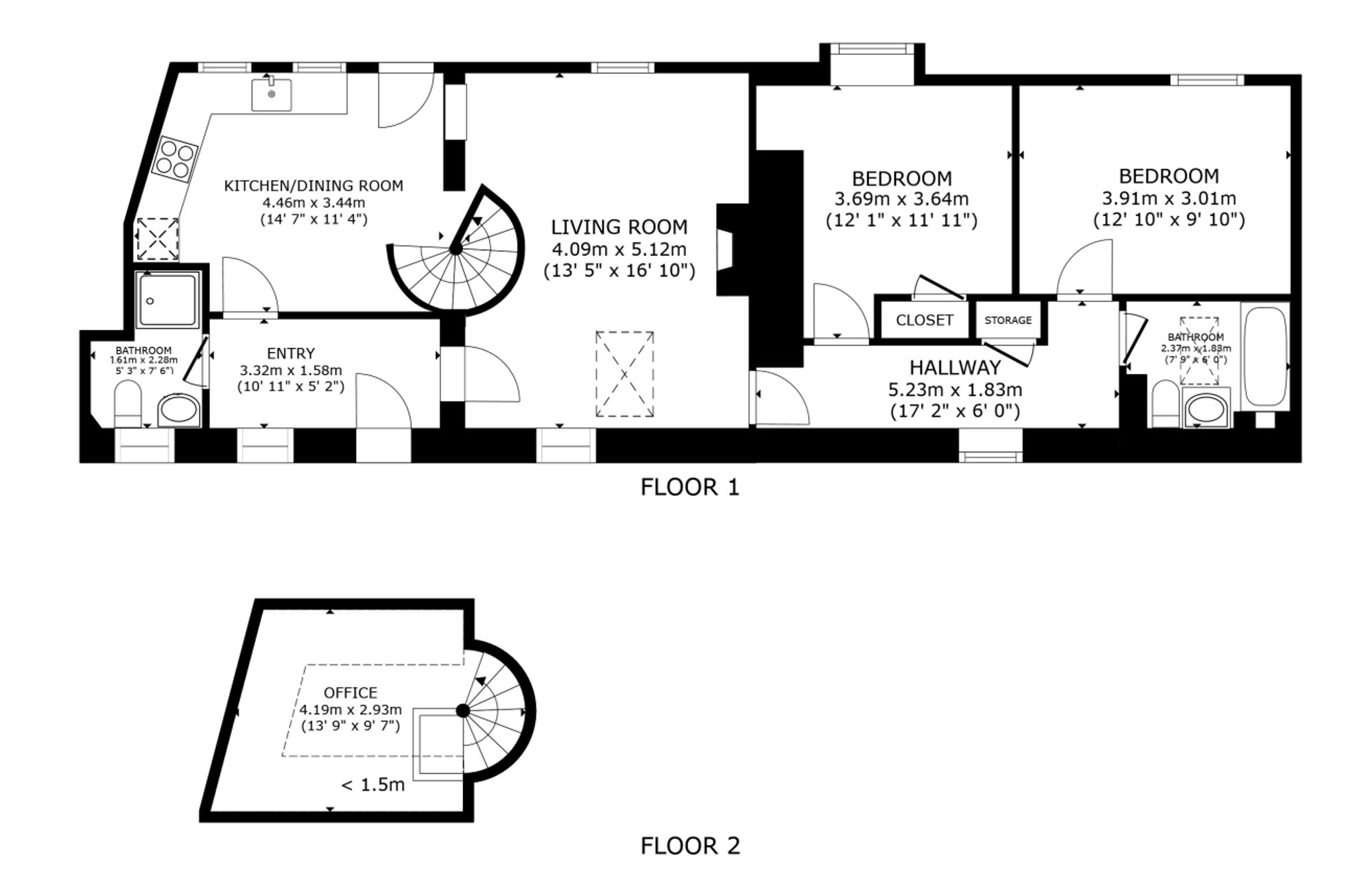
Myrtle Cottage blends traditional appeal with thoughtful extensions and adaptations, creating a home that feels both welcoming and versatile. The ground floor arrangement flows naturally, with the lounge positioned to offer a cosy focal point for everyday living. The kitchen/diner provides ample space for cooking, dining and entertaining, with enough room to accommodate family gatherings or more intimate meals. Both bedrooms on this level offer comfortable accommodation, while the bathroom and separate shower room add to the property’s practicality, ensuring flexibility for households or visiting guests. The utility room and rear porch contribute further storage and functionality, making the home particularly well suited to modern lifestyles.

The spiral staircase leading to the attic floor introduces a sense of character and charm, opening into a peaceful study area ideal for home working, hobbies or simply enjoying a quiet corner away from the main living spaces. This versatile room has previously been used as a third bedroom and is capable of accommodating a double bed, offering additional flexibility for varying household needs.

Externally, the property sits within established garden grounds that complement its traditional style. The front garden creates an attractive approach from Balkerach Street, offering a secluded outdoor space perfect for relaxing or gardening. Stone walls and timber fencing provide both privacy and a sense of enclosure, enhancing the cottage’s overall appeal. The dedicated parking area at the rear ensures convenient access without compromising the charm of the garden setting.

Located within the desirable village of Doune, the cottage benefits from a wide range of nearby amenities including shops, cafés, leisure facilities and primary schooling. The village’s mix of historic and modern properties gives the area a distinctive character, while accessible transport links make it a convenient base for commuting to Stirling, Dunblane and beyond. Myrtle Cottage stands as a delightful and practical home in a sought-after setting, offering comfort, charm and everyday convenience.

Key Features

  • 2 Bedrooms
  • 2 Bathrooms
  • Semi Detached Cottage
  • Covered area approx. 957 sqft
  • Council Tax Band E

Interested in this Property?

Make an enquiry via email

"*" indicates required fields

This field is for validation purposes and should be left unchanged.
Please use valid format e.g. 07123456789, +44 7123456789, +447123456789 #123, (07123) 456 789, etc
GDPR Consent*

OR

Contact our local expert or request a callback

Tara Sinclair
t. 01786 471777
Email Tara Sinclair Request A Callback

Request A Call Back

"*" indicates required fields

This field is for validation purposes and should be left unchanged.
Please use valid format e.g. 07123456789, +44 7123456789, +447123456789 #123, (07123) 456 789, etc
GDPR Consent*

Featured Properties

Your saved properties

clyde logo white

Property Alerts.

Stay one step ahead of the market. Register with us today to receive property alters before the portals.

Register your details and property criteria below, and we will send you updates about homes that match your search criteria.

Tip: You can add multiple options/criteria after registration.