Under Offer

Suilven, Henderson Street

Bridge Of Allan, Stirling, FK9 4RQ
Scroll

Suilven, Henderson Street

Suilven, Henderson Street

Bridge Of Allan, Stirling, FK9 4RQ

Offers Over £850,000

Suilven is a substantial and beautifully restored, stone built B-Listed family home, dating back to the 1860s, occupying an elevated, south facing position with panoramic views over Pullar Memorial Park, Stirling Castle and the Wallace Monument beyond.

The property underwent an extensive renovation in 2023, blending period charm with contemporary comfort. Works included the replacement of an older extension with a striking new open plan kitchen and family room, as well as the full refurbishment of bathrooms, installation of a new heating system, complete rewiring, and a CCTV system.

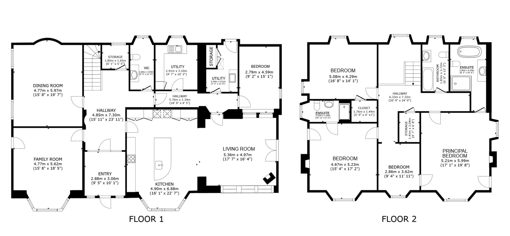
At the heart of the home is the magnificent open plan kitchen and family room, offering uninterrupted views toward Stirling Castle and direct access to the garden via patio doors. A log-burning stove adds warmth and character to the space, and the kitchen is fitted with premium AEG appliances, including a Black Edition combi oven/microwave, integrated double fridges and freezers, coffee machine, and dishwasher. A five oven electric AGA in the contemporary Blush shade is a feature. The central island includes a breakfast bar and a Quooker tap that provides boiling and chilled sparkling water.

Adjacent to the elegant drawing room, which enjoys a large south facing bay window, is a generous dining room featuring two west facing windows, shelved alcoves, and ornate ceiling plasterwork.

A curved stone staircase leads from the entrance hall to a bright first floor landing, illuminated by a large window. Off the landing are four spacious bedrooms, two of which enjoy spectacular south facing bay windows with working shutters and stunning views of Stirling Castle. The principal bedroom has an en suite bathroom with a separate shower, while the second bedroom benefits from its own en suite shower room. The third double bedroom includes a walk-in wardrobe. A fourth bedroom, ideal for guests, completes the accommodation on this level. A modern family bathroom and linen cupboard complete the first floor.

The basement comprises three store rooms, with existing planning consent in place to convert this space into an additional bedroom, shower room, and storage area, offering excellent potential for future expansion.

The front garden is beautifully maintained, south facing, and mainly laid to lawn, surrounded by mature trees and shrubs, with part of the grounds enclosed by an evergreen yew hedge and traditional stone walls to provide privacy. A tarmac driveway approaches the house through original stone pillars, winding past the front garden to a gravelled parking area to the side. At the rear, a paved courtyard is overlooked by the original stone built coach house, currently derelict and in need of full restoration. Subject to the necessary consents, this space could be transformed into additional accommodation such as a guest annexe, home office, or studio. To the north of the courtyard, a dense screen of mature trees and rhododendrons provides privacy and protection from neighbouring properties.

Bridge of Allan is a charming and historic spa town with a vibrant centre, offering a wide range of shops, cafés, and restaurants. Less than half a mile from the property is Fairview International School, a highly regarded independent school for children of all ages. Bridge of Allan was recently ranked as one of the best places to live in Scotland for 2025 by Garrington Property Finders. The town also offers excellent recreational opportunities, including a golf course, tennis club, and access to Stirling University’s first-class facilities, which are open to the public. These include a near-Olympic-sized swimming pool, indoor and outdoor tennis courts, a public library, and the Macrobert Arts Centre, which offers live performances and film screenings. Additional schooling options include several well-regarded local state schools and leading private schools such as Dollar Academy, Strathallan, Glenalmond, Morrison’s Academy, and Kilgraston.

Stirling lies just to the south and offers a full range of amenities including major supermarkets, a Waitrose, and a rich historical heritage centred around Stirling Castle and the Wallace Monument. Transport links are excellent, with quick access to the M9 and A9, providing convenient road travel to Edinburgh, Glasgow, and Perth. Both cities’ airports are within easy reach, and Bridge of Allan railway station offers direct commuter services to Edinburgh and Glasgow.

For outdoor enthusiasts, Loch Lomond and The Trossachs National Park lies just to the west, offering a wide array of activities such as hiking, mountain biking, and water sports. The world-renowned Gleneagles Hotel and Golf Resort is only 17 miles away.

Suilven offers a rare opportunity to acquire a beautifully modernised period home in one of Scotland’s most desirable towns. With breathtaking views, generous accommodation, elegant modern features, and further development potential, this is a home that perfectly balances character, lifestyle, and location.

Key Features

  • 5 Bedrooms
  • 4 Bathrooms
  • Detached House

Interested in this Property?

Make an enquiry via email

"*" indicates required fields

This field is for validation purposes and should be left unchanged.
Please use valid format e.g. 07123456789, +44 7123456789, +447123456789 #123, (07123) 456 789, etc
GDPR Consent*

OR

Contact our local expert or request a callback

Tara Sinclair
t. 01786 471777
Email Tara Sinclair Request A Callback

Request A Call Back

"*" indicates required fields

This field is for validation purposes and should be left unchanged.
Please use valid format e.g. 07123456789, +44 7123456789, +447123456789 #123, (07123) 456 789, etc
GDPR Consent*

Featured Properties

Your saved properties

clyde logo white

Property Alerts.

Stay one step ahead of the market. Register with us today to receive property alters before the portals.

Register your details and property criteria below, and we will send you updates about homes that match your search criteria.

Tip: You can add multiple options/criteria after registration.