Sold

6 North Lea

Doune, FK16 6DH
Scroll

6 North Lea

6 North Lea

Doune, FK16 6DH

Offers Over £205,000

Nestled within a popular residential setting in the charming village of Doune, this semi-detached villa offers spacious and versatile accommodation, perfect for families or those looking for flexible living arrangements.

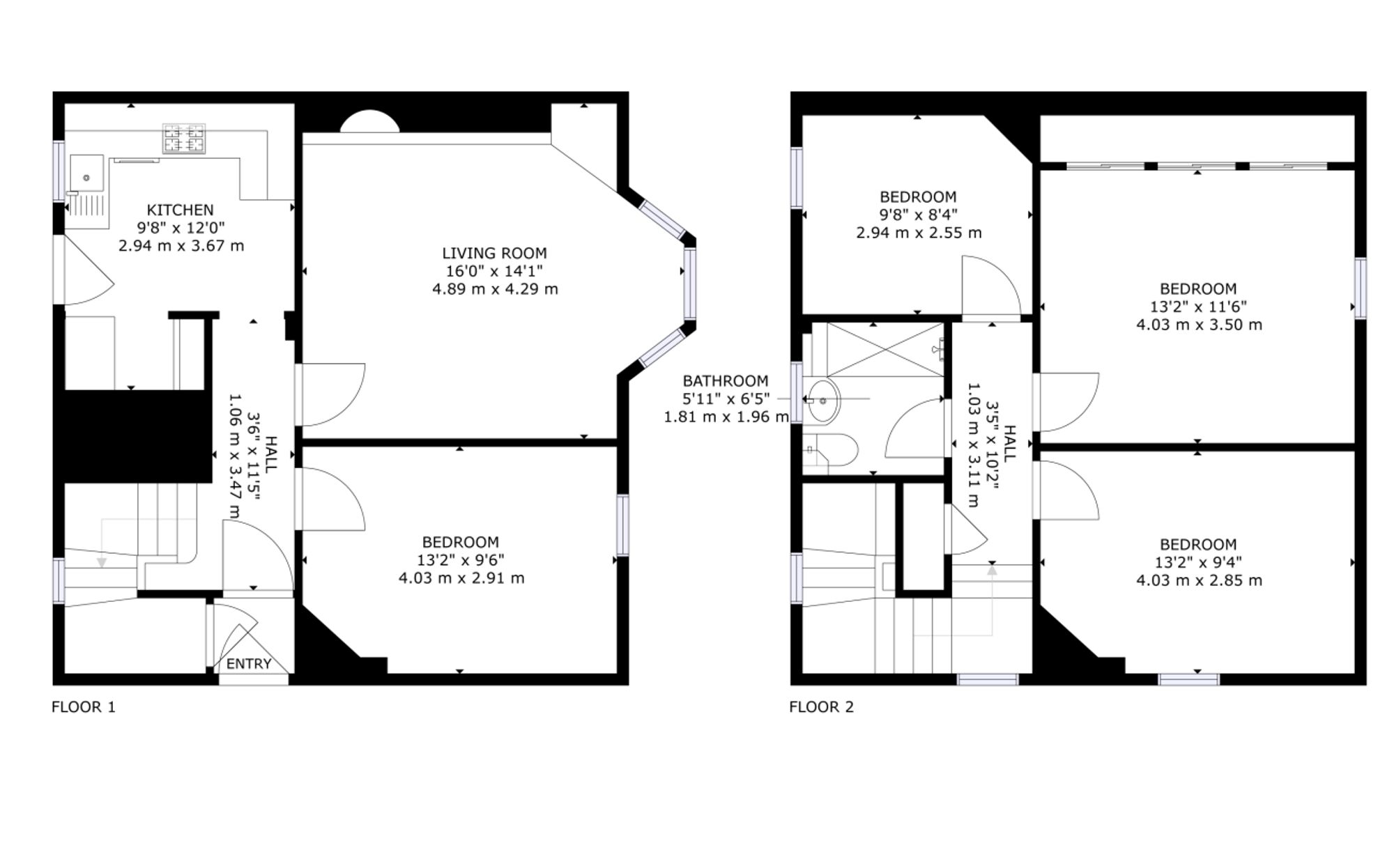
The ground floor comprises a welcoming entrance hall, a bright and comfortable lounge, a well-appointed kitchen, and a flexible room that can be used as a dining space or a fourth bedroom, depending on your needs. This additional ground floor room adds valuable adaptability to the home’s layout.

Upstairs, the first floor features a central landing giving access to three generously sized double bedrooms, all filled with natural light. A shower room is also located on this level, providing practical convenience for daily use.

The property is set within large private garden grounds to the front, side, and rear, offering excellent outdoor space for gardening, relaxation, or family use. The gardens are enclosed by a combination of traditional dry stone dyke walls and fencing, adding both character and privacy. Mature shrubs and planting provide a peaceful and well-established setting.

Further features include a timber shed, a glass greenhouse, and an integral store to the rear of the property, providing practical storage solutions. On-street parking is available within a short walking distance.

The home has been well cared for and offers excellent potential for buyers to personalise the interior to their own style and needs. Conveniently located close to local amenities in Doune, and with easy access to the Cathedral city of Dunblane and the wider facilities of Stirling, this is a wonderful opportunity to create a comfortable and well-connected home in a sought-after village setting.

Key Features

  • 4 Bedrooms
  • 1 Bathroom
  • Semi Detached House
  • Covered area approx. 1,108 sqft
  • Council Tax Band C

Interested in this Property?

Make an enquiry via email

"*" indicates required fields

This field is for validation purposes and should be left unchanged.
Please use valid format e.g. 07123456789, +44 7123456789, +447123456789 #123, (07123) 456 789, etc
GDPR Consent*

OR

Contact our local expert or request a callback

Tara Sinclair
t. 01786 471777
Email Tara Sinclair Request A Callback

Request A Call Back

"*" indicates required fields

This field is for validation purposes and should be left unchanged.
Please use valid format e.g. 07123456789, +44 7123456789, +447123456789 #123, (07123) 456 789, etc
GDPR Consent*

Featured Properties

Your saved properties

clyde logo white

Property Alerts.

Stay one step ahead of the market. Register with us today to receive property alters before the portals.

Register your details and property criteria below, and we will send you updates about homes that match your search criteria.

Tip: You can add multiple options/criteria after registration.