Under Offer

Gartwhinnie View, Bore Row

Plean, Stirling, FK7 8AA
Scroll

Gartwhinnie View, Bore Row

Gartwhinnie View, Bore Row

Plean, Stirling, FK7 8AA

Offers Over £425,000

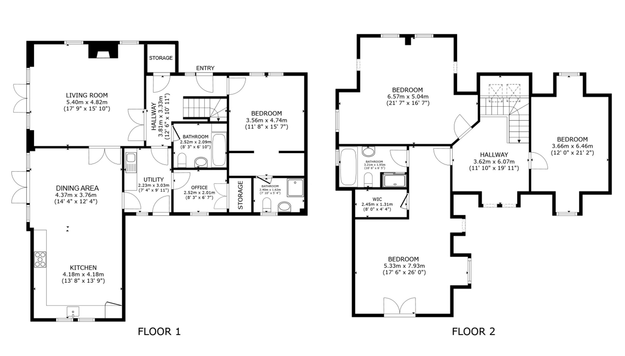
Set within a semi-rural setting south of Stirling, this impressive detached residence offers generous and well-balanced accommodation, ideally suited to family living or those seeking space and privacy while remaining within convenient reach of local amenities.

The property boasts four well-proportioned double bedrooms, each offering excellent natural light and flexible use for family members, guests, or home working. The principal bedroom benefits from a private ensuite and walk-in-wardrobe, providing a comfortable and practical retreat, while the remaining bedrooms are served by a well-appointed family bathroom finished to a high standard.

The internal layout has been thoughtfully designed to combine functionality with comfort. Living spaces flow naturally, creating an inviting atmosphere for both everyday living and entertaining. A separate utility room adds valuable practicality, offering additional storage and dedicated space for laundry and household tasks.

Externally, the home is set within expansive garden grounds that are a particular highlight of the property. The gardens provide a wonderful sense of openness and privacy, with ample room for outdoor dining, recreation, gardening, or future landscaping opportunities, all while enjoying the surrounding semi-rural outlook.

This attractive detached home represents a rare opportunity to acquire a spacious property in a tranquil setting, perfectly balancing countryside charm with modern family living.

Key Features

  • 4 Bedrooms
  • 3 Bathrooms
  • Detached House
  • Covered area approx. 2,325 sqft

Interested in this Property?

Make an enquiry via email

"*" indicates required fields

This field is for validation purposes and should be left unchanged.
Please use valid format e.g. 07123456789, +44 7123456789, +447123456789 #123, (07123) 456 789, etc
GDPR Consent*

OR

Contact our local expert or request a callback

Sophie Bechelli
Email Sophie Bechelli Request A Callback

Request A Call Back

"*" indicates required fields

This field is for validation purposes and should be left unchanged.
Please use valid format e.g. 07123456789, +44 7123456789, +447123456789 #123, (07123) 456 789, etc
GDPR Consent*

Featured Properties

Your saved properties

clyde logo white

Property Alerts.

Stay one step ahead of the market. Register with us today to receive property alters before the portals.

Register your details and property criteria below, and we will send you updates about homes that match your search criteria.

Tip: You can add multiple options/criteria after registration.