Under Offer

Inchbuie Craignavie Road

Killin, FK21 8SH
Scroll

Inchbuie Craignavie Road

Inchbuie Craignavie Road

Killin, FK21 8SH

Offers Over £429,000

Inchbuie is a charming three-bedroom detached villa combining period character with modern convenience, located within a designated Conservation Area in the heart of the picturesque village of Killin. Originally built around 1876, the property has been thoughtfully extended to the rear with a contemporary addition completed circa 2018, creating a well-balanced and spacious family home.

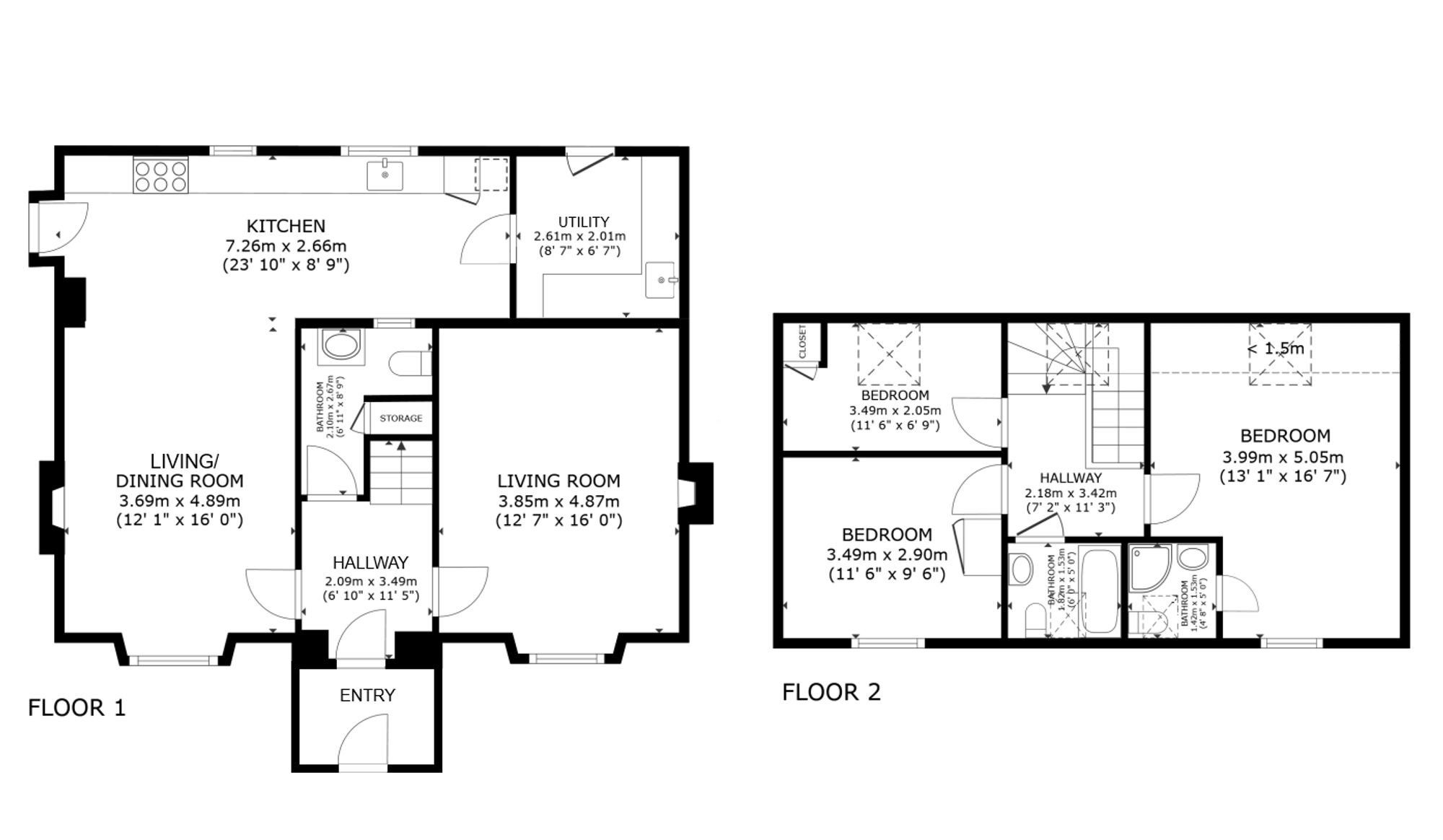
The ground floor comprises an entrance porch leading into a welcoming hallway, two comfortable living areas, a stylish modern kitchen with garden access, a utility room, cloakroom, and a toilet. On the first floor, there are three spacious bedrooms, a family bathroom, and an en-suite shower room serving the principal bedroom.

Set within private garden grounds to the front and rear, the property enjoys a peaceful residential setting amongst a variety of traditionally styled homes. A row of fourteen south-east facing solar panels is discreetly positioned in the rear garden, contributing to the home’s energy efficiency.

To the rear, a large, detached ancillary building—constructed circa 2021—offers a flexible space suitable for guest accommodation, a creative studio, or a hobby room for example. Of timber-framed construction, it benefits from electric heating, a hot water supply, and a fully fitted shower room.

Additional external features include a timber-built single-car garage and a timber summerhouse—ideal for relaxing or entertaining in the warmer months.

Killin is a vibrant and scenic village located at the western head of Loch Tay and surrounded by some of Scotland’s most striking natural landscapes. The village is famed for the dramatic Falls of Dochart, which flow through its centre, and offers immediate access to outdoor pursuits including hillwalking, cycling, fishing, and watersports. Killin sits within the boundary of the Loch Lomond and The Trossachs National Park, making it a haven for nature lovers and those seeking a tranquil lifestyle in a truly beautiful setting.

The village itself provides a good range of local amenities including shops, cafés, a primary school, a medical practice, and a post office, while more extensive services are available in nearby towns such as Callander and Aberfeldy.

This is a rare opportunity to acquire a historic yet modernised home in one of Scotland’s most sought-after rural communities—offering the perfect balance of charm, comfort, and connection to nature.

Key Features

  • 3 Bedrooms
  • 3 Bathrooms
  • Detached House
  • Covered area approx. 861 sqft

Interested in this Property?

Make an enquiry via email

"*" indicates required fields

This field is for validation purposes and should be left unchanged.
Please use valid format e.g. 07123456789, +44 7123456789, +447123456789 #123, (07123) 456 789, etc
GDPR Consent*

OR

Contact our local expert or request a callback

Julie Martin
t. 01786 471777
Email Julie Martin Request A Callback

Request A Call Back

"*" indicates required fields

This field is for validation purposes and should be left unchanged.
Please use valid format e.g. 07123456789, +44 7123456789, +447123456789 #123, (07123) 456 789, etc
GDPR Consent*

Featured Properties

Your saved properties

clyde logo white

Property Alerts.

Stay one step ahead of the market. Register with us today to receive property alters before the portals.

Register your details and property criteria below, and we will send you updates about homes that match your search criteria.

Tip: You can add multiple options/criteria after registration.