Under Offer

28 Macalpine Court

Tullibody, Alloa, FK10 2FB
Scroll

28 Macalpine Court

28 Macalpine Court

Tullibody, Alloa, FK10 2FB

Offers Over £335,000

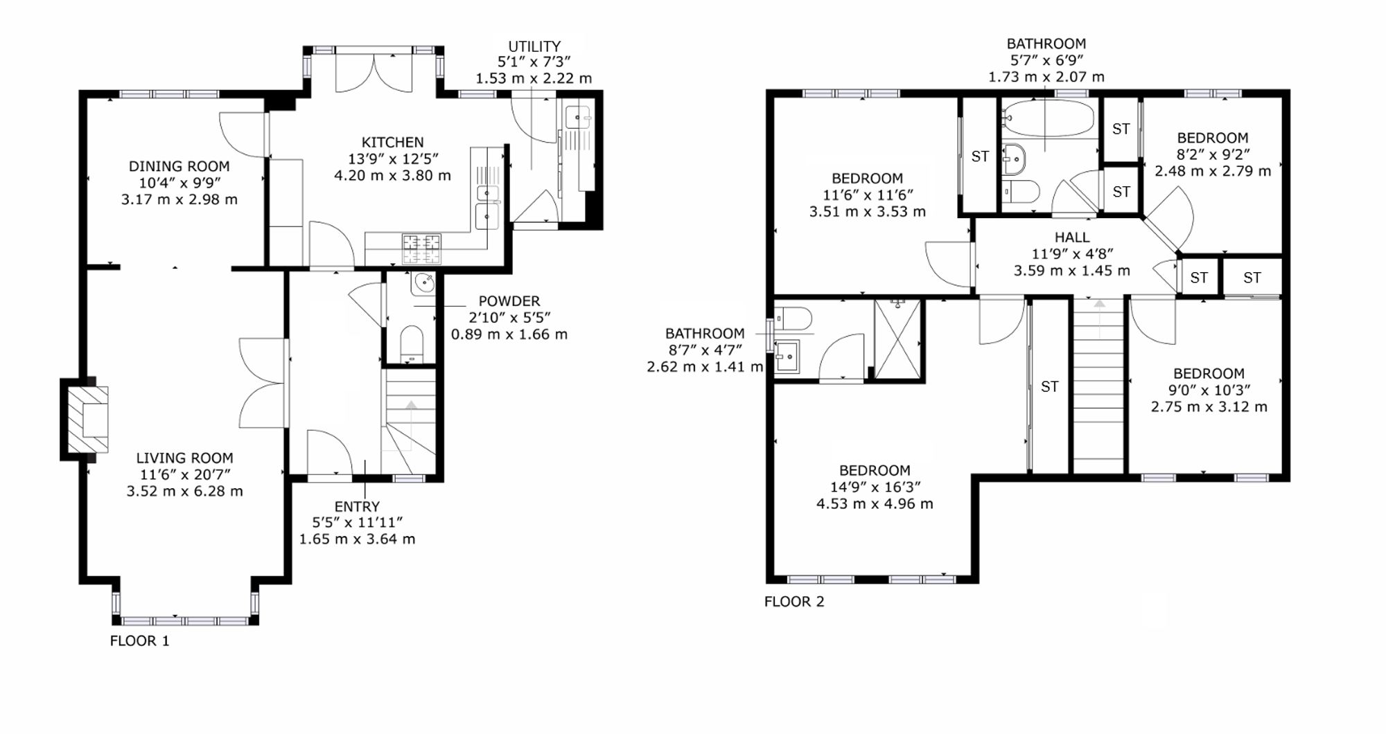
Nestled up the hill and in a quiet cul de sac, this truly immaculate four-bedroom detached home offers an exceptional standard of modern living, set against a stunning backdrop with uninterrupted views towards the Ochil Hills, Stirling Castle and The Wallace Monument. Built in 2005 and extending to over 1,300 sq ft, the property has been meticulously maintained and thoughtfully presented, providing bright, spacious accommodation perfectly suited to contemporary family life.

Upon entering, you are welcomed by a well-proportioned hallway leading through to a superb open-plan living and dining room, flooded with natural light and offering an ideal space for both everyday living and entertaining. The breakfasting kitchen is stylish and functional, featuring ample worktop and storage space, while a separate utility room adds further practicality and convenience. A downstairs W/C completes the ground floor accommodation.

Upstairs, the property boasts four generously sized double bedrooms, all benefiting from integrated storage. The principal bedroom is particularly impressive, complete with a sleek and modern ensuite shower room. The remaining bedrooms are served by a well-appointed family bathroom, making this home perfectly equipped for growing families.

Externally, the property continues to impress. The professionally landscaped rear garden has been designed with both relaxation and entertaining in mind, offering multiple seating areas to enjoy sunshine throughout the day. To the front, there is a driveway providing off-street parking for two or more vehicles, along with an integral single garage.

MacAlpine Court in Tullibody is a highly desirable residential location, particularly popular with families and commuters alike. The area benefits from excellent motorway connections and convenient public transport links, ensuring easy access to surrounding towns and cities while enjoying a peaceful, community-focused setting.

Key Features

  • 4 Bedrooms
  • 3 Bathrooms
  • Detached House
  • Covered area approx. 1,388 sqft
  • Council Tax Band F

Interested in this Property?

Make an enquiry via email

"*" indicates required fields

This field is for validation purposes and should be left unchanged.
Please use valid format e.g. 07123456789, +44 7123456789, +447123456789 #123, (07123) 456 789, etc
GDPR Consent*

OR

Contact our local expert or request a callback

Sophie Bechelli
Email Sophie Bechelli Request A Callback

Request A Call Back

"*" indicates required fields

This field is for validation purposes and should be left unchanged.
Please use valid format e.g. 07123456789, +44 7123456789, +447123456789 #123, (07123) 456 789, etc
GDPR Consent*

Featured Properties

Your saved properties

clyde logo white

Property Alerts.

Stay one step ahead of the market. Register with us today to receive property alters before the portals.

Register your details and property criteria below, and we will send you updates about homes that match your search criteria.

Tip: You can add multiple options/criteria after registration.