Sold STC

99 Somerville Drive, Flat 3/1, Mount Florida

Glasgow, G42 9BH
Scroll

99 Somerville Drive, Flat 3/1, Mount Florida

99 Somerville Drive, Flat 3/1, Mount Florida

Glasgow, G42 9BH

Offers Over £269,000

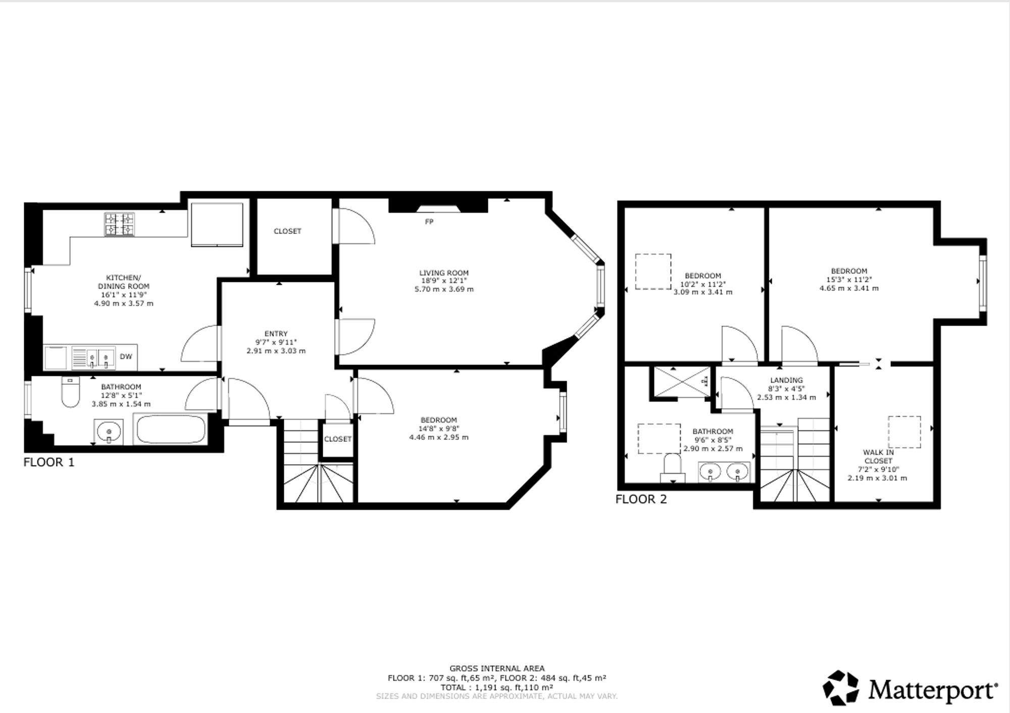
Positioned on sought-after Somerville Drive in the heart of ever-popular Mount Florida, this exceptional three-bedroom duplex apartment occupies the top floor and attic level of an impressive blonde sandstone tenement, offering an outstanding blend of period character and contemporary design.

Enjoying a prime setting, the property is perfectly placed to take advantage of the area’s vibrant selection of cafés, bars, and local amenities, while Mount Florida train station is just a short stroll away, providing swift access to the city centre.

The apartment itself has been meticulously maintained and thoughtfully upgraded by the current owner, resulting in a home of genuine quality and style. Notable features include gas central heating with striking column radiators, double glazing, and secure door entry, all complementing the property’s elegant proportions and refined finish.

Accessed via a well-kept communal close, the accommodation opens into a broad and welcoming reception hallway, complete with a deep storage cupboard and access to all principal apartments. The stunning lounge is both bright and spacious, enjoying an open outlook and enhanced by a large storage cupboard, an ideal space for relaxing or entertaining.

At the heart of the home lies a truly impressive dining kitchen, designed with both style and functionality in mind. A striking exposed stone wall adds character, while a range of sleek base and wall-mounted units, integrated appliances, premium underfloor heating, delivering seamless warmth and elevated comfort and ample space for dining make this a standout feature of the property.

The lower level further comprises a beautifully appointed main bathroom with a contemporary three-piece suite, including a bath, and a generously proportioned principal bedroom to the front.

A staircase leads to the upper level, where the sense of space continues. Here, two excellent double bedrooms provide superb flexibility, with one boasting a particularly impressive walk-in wardrobe, perfectly suited to modern living. This level is served by a stylish bathroom featuring underfloor heating, a large walk-in shower enclosure, WC, and twin basins, creating a luxurious and practical space.

This is a truly special home, rich in character, immaculately presented, and offering an exceptional degree of flexibility. Ideally suited to contemporary lifestyles, including home working, it combines timeless architecture with modern sophistication in one of the Southside’s most desirable locations.

Key Features

  • 3 Bedrooms
  • 2 Bathrooms
  • Flat
  • Covered area approx. 1,248 sqft
  • Council Tax Band D

Interested in this Property?

Make an enquiry via email

"*" indicates required fields

This field is for validation purposes and should be left unchanged.
Please use valid format e.g. 07123456789, +44 7123456789, +447123456789 #123, (07123) 456 789, etc
GDPR Consent*

OR

Contact our local expert or request a callback

Kieran MacLean
t. 0141 571 3777
Email Kieran MacLean Request A Callback

Request A Call Back

"*" indicates required fields

This field is for validation purposes and should be left unchanged.
Please use valid format e.g. 07123456789, +44 7123456789, +447123456789 #123, (07123) 456 789, etc
GDPR Consent*

Featured Properties

Your saved properties

clyde logo white

Property Alerts.

Stay one step ahead of the market. Register with us today to receive property alters before the portals.

Register your details and property criteria below, and we will send you updates about homes that match your search criteria.

Tip: You can add multiple options/criteria after registration.