Under Offer

8 St. Thomas Well

Cambusbarron, Stirling, FK7 9PR
Scroll

8 St. Thomas Well

8 St. Thomas Well

Cambusbarron, Stirling, FK7 9PR

Offers Over £385,000

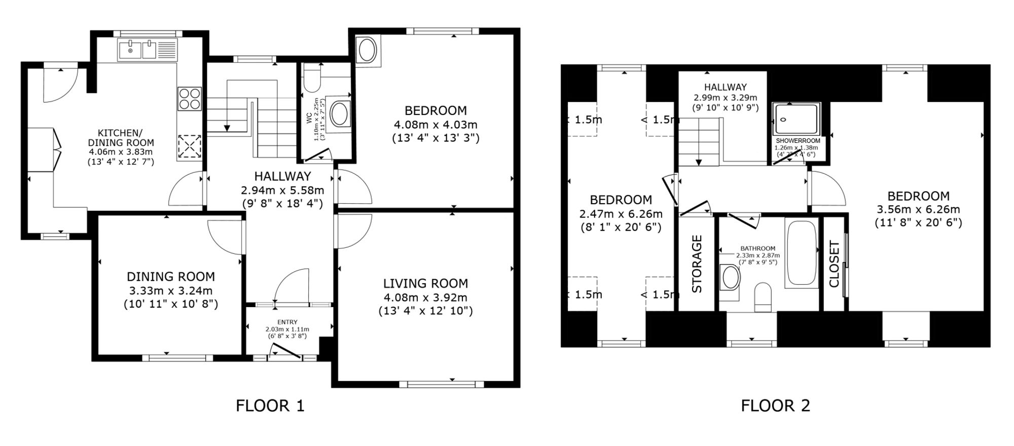
This immaculately presented one-and-a-half storey detached home offers approximately 120m² of beautifully maintained living space, set within the highly desirable St. Thomas Well area of Cambusbarron. Perfectly positioned in a peaceful residential setting, the property provides an exceptional standard of accommodation with spacious interiors and extensive private gardens.

The ground floor welcomes you with an elegant entrance vestibule leading into a bright and inviting hallway. The generously sized lounge offers a comfortable space for relaxation, while the separate dining room is ideal for family gatherings or entertaining. A stylish and well-appointed kitchen with dining area provides a sociable hub for everyday living, complemented by a convenient toilet and a versatile ground-floor bedroom that could serve as a guest room or home office.

Upstairs, the attic floor features two beautifully presented bedrooms, a modern shower room, and a well-fitted family bathroom. Each room has been finished to a high standard, creating a warm and welcoming atmosphere throughout.

Externally, the property enjoys large, private gardens to the front and rear, immaculately maintained and mainly laid to lawn with mature planting that adds colour and privacy. The outdoor space offers excellent potential for relaxation, play, and entertaining. The boundaries are defined by attractive timber fencing and brick walls, ensuring a secure and secluded setting. A monoblock driveway provides ample parking and leads to an attached double garage, offering additional storage and convenience.

This outstanding home combines elegant presentation, spacious accommodation, and a prime location, making it an ideal choice for families or anyone seeking a high-quality residence in one of Cambusbarron’s most sought-after areas.

Key Features

  • 3 Bedrooms
  • 3 Bathrooms
  • Detached House
  • Covered area approx. 1,291 sqft
  • Council Tax Band G

Interested in this Property?

Make an enquiry via email

"*" indicates required fields

This field is for validation purposes and should be left unchanged.
Please use valid format e.g. 07123456789, +44 7123456789, +447123456789 #123, (07123) 456 789, etc
GDPR Consent*

OR

Contact our local expert or request a callback

Julie Martin
t. 01786 471777
Email Julie Martin Request A Callback

Request A Call Back

"*" indicates required fields

This field is for validation purposes and should be left unchanged.
Please use valid format e.g. 07123456789, +44 7123456789, +447123456789 #123, (07123) 456 789, etc
GDPR Consent*

Featured Properties

Your saved properties

clyde logo white

Property Alerts.

Stay one step ahead of the market. Register with us today to receive property alters before the portals.

Register your details and property criteria below, and we will send you updates about homes that match your search criteria.

Tip: You can add multiple options/criteria after registration.