Sold STC

28 Carronvale Avenue

Larbert, FK5 3LL
Scroll

28 Carronvale Avenue

28 Carronvale Avenue

Larbert, FK5 3LL

Offers Over £207,000

***CLOSING DATE***

WEDNESDAY 4TH MARCH 2026 AT 12NOON

Located centrally within highly regarded Larbert this modern detached villa occupies private gardens with a long driveway leading to a single garage. The enclosed rear garden has been complemented by the addition of a rear conservatory. The subjects, which now require substantial upgrading, lie within easy reach of many excellent Larbert town centre amenities including shopping, schooling and Larbert Rail Station which provides access to Stirling, Edinburgh and Glasgow.

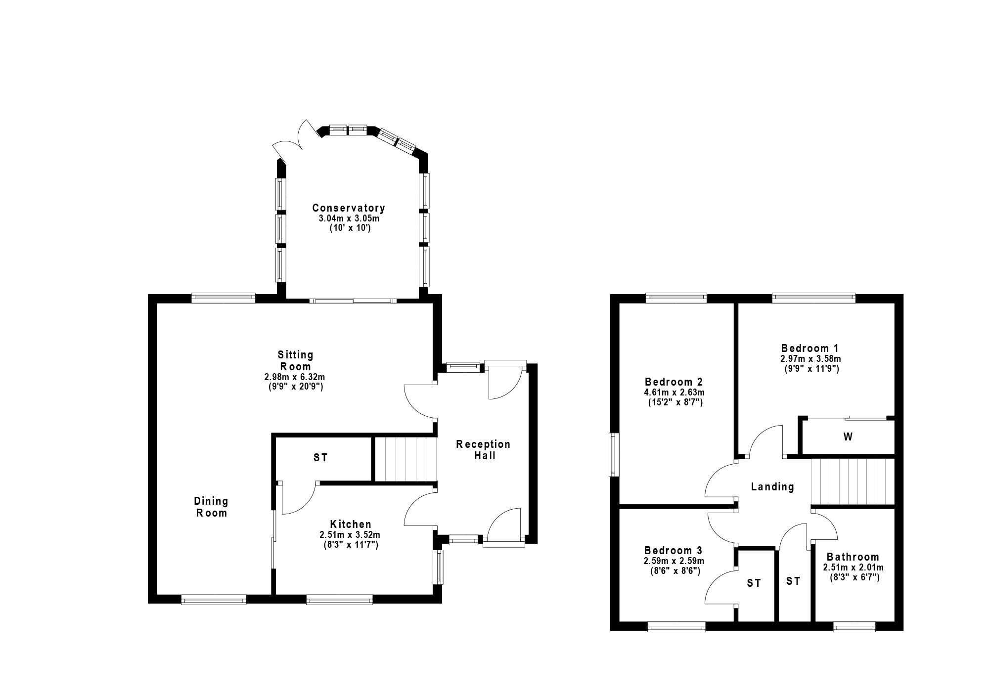
Entry to the property is through a larger reception hallway with both and front rear exterior doors allowing access to the gardens. The impressive sitting room extends to in excess of twenty feet and enjoys access via sliding doors to the conservatory. The sitting room enjoys open plan access to a large dining room which has a door to the kitchen. The dining kitchen is a bright apartment with a walk in storage cupboard off.

On the upper floor there are three bedrooms and a generously sized family bathroom with separate shower. Practical features include gas central heating, double glazing and excellent storage. Although now requiring modernisation and upgrading the property offers the successful purchaser an ideal opportunity to modernise and finish to personal specification and taste.

Sitting Room 20’9” x 9’9” (at widest) 6.32m x 2.97m

Dining Room 12’2” x 8’7” 3.71m x 2.62m

Conservatory 10” x 10” 3.05m x 3.05m

Bedroom One 11’9” x 9’9” (at widest) 3.58m x 2.97m

Bedroom Two 15’2” x 8’7” 4.62m x 2.62m

Bedroom Three 8’6” x 8’6” 2.59m x 2.59m

Kitchen 11’7” x 8’3” 3.53m x 2.51m

Bathroom 8’4” x 6’7” 2.54m x 2.01m

Key Features

  • 3 Bedrooms
  • 1 Bathroom
  • Villa
  • Covered area approx. 990 sqft
  • Council Tax Band E

Interested in this Property?

Make an enquiry via email

"*" indicates required fields

This field is for validation purposes and should be left unchanged.
Please use valid format e.g. 07123456789, +44 7123456789, +447123456789 #123, (07123) 456 789, etc
GDPR Consent*

OR

Contact our local expert or request a callback

Susan Dunsmore
Email Susan Dunsmore Request A Callback

Request A Call Back

"*" indicates required fields

This field is for validation purposes and should be left unchanged.
Please use valid format e.g. 07123456789, +44 7123456789, +447123456789 #123, (07123) 456 789, etc
GDPR Consent*

Featured Properties

Your saved properties

clyde logo white

Property Alerts.

Stay one step ahead of the market. Register with us today to receive property alters before the portals.

Register your details and property criteria below, and we will send you updates about homes that match your search criteria.

Tip: You can add multiple options/criteria after registration.