Under Offer

13 Victoria Square

Stirling, FK8 2RB
Scroll

13 Victoria Square

13 Victoria Square

Stirling, FK8 2RB

Offers Over £520,000

Set within the highly sought-after Kings Park Conservation Area and enjoying an enviable position overlooking Victoria Square, this striking four-bedroom conversion offers an exceptional opportunity to acquire a substantial Victorian home in one of Stirling’s most prestigious addresses.

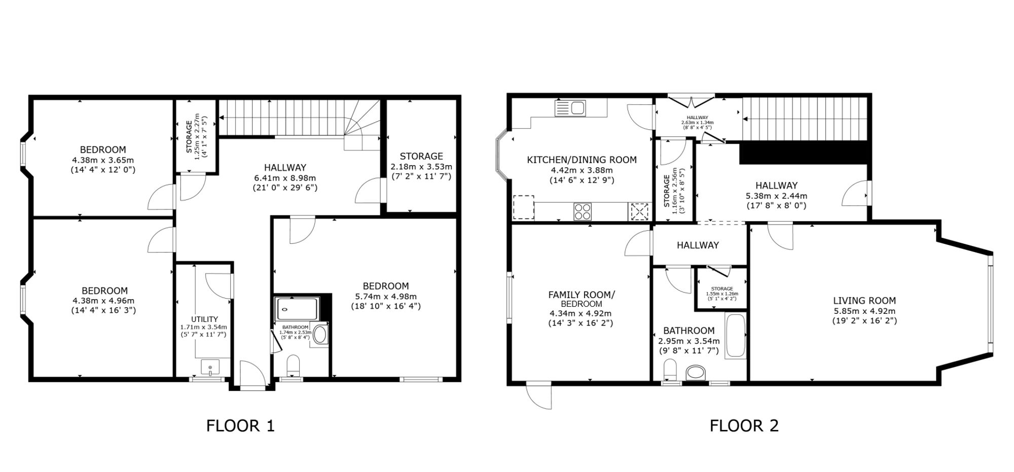
Constructed in the 1880s, this handsome stone-built property forms part of a distinguished period residence that perfectly captures the elegance and craftsmanship of the Victorian era. Extending to over 2,550 square feet of beautifully proportioned accommodation across two expansive levels, the home effortlessly blends timeless architectural character with modern-day comfort.

The approach is immediately impressive, with the traditional stone façade and elevated outlook across Victoria Square creating a commanding first impression. Internally, the property is rich in well-preserved period features, including intricate cornicing, deep skirting boards, original timber detailing, sash and case windows, and impressive ceiling heights that enhance the sense of light and grandeur throughout.

A particular highlight of the principal living accommodation is the magnificent large bay window, which projects gracefully from the main reception room and provides a truly stunning, uninterrupted view across Victoria Square. This striking architectural feature not only enhances the room’s sense of scale and elegance but also floods the space with natural light, creating a bright and uplifting atmosphere while framing the leafy outlook beyond.

The principal living spaces are especially noteworthy—generous, elegant rooms designed for both formal entertaining and relaxed family living. The expansive layout provides remarkable flexibility for contemporary lifestyles, while the kitchen and family areas are thoughtfully arranged to offer ample space for gathering and everyday living, all while maintaining the charm and integrity of the original design.

The accommodation comprises four substantial bedrooms, each beautifully proportioned and filled with character. The principal bedroom suite is especially impressive, enjoying elevated views and a tranquil ambience befitting such a historic setting. Additional bedrooms offer versatility for family life, guest accommodation, or home working, complemented by well-appointed bathrooms.

To the rear, the property benefits from access to a private west-facing garden—an ideal setting for afternoon and evening sun. This delightful outdoor space provides a peaceful retreat, perfect for entertaining, gardening, or simply relaxing in a quiet and established environment.

The setting further enhances the home’s appeal. Kings Park is one of Stirling’s most desirable residential areas, known for its grand period architecture, tree-lined streets, and immediate proximity to the historic parkland. The property lies within the former Royal Hunting Grounds of Stirling Castle, lending a unique sense of heritage and prestige to this already remarkable address. The open green spaces, tennis courts, and walking routes of Kings Park are moments away, while Stirling’s city centre, excellent schooling, and transport links are all easily accessible.

Rarely do properties of this scale, character, and historical significance come to market in such a prime conservation setting. This is a truly outstanding Victorian home offering gracious living accommodation, period splendour, and an exceptional lifestyle opportunity in the heart of Stirling.

Key Features

  • 4 Bedrooms
  • 2 Bathrooms
  • Duplex
  • Covered area approx. 2,551 sqft
  • Council Tax Band F

Interested in this Property?

Make an enquiry via email

"*" indicates required fields

This field is for validation purposes and should be left unchanged.
Please use valid format e.g. 07123456789, +44 7123456789, +447123456789 #123, (07123) 456 789, etc
GDPR Consent*

OR

Contact our local expert or request a callback

Sophie Bechelli
Email Sophie Bechelli Request A Callback

Request A Call Back

"*" indicates required fields

This field is for validation purposes and should be left unchanged.
Please use valid format e.g. 07123456789, +44 7123456789, +447123456789 #123, (07123) 456 789, etc
GDPR Consent*

Featured Properties

Your saved properties

clyde logo white

Property Alerts.

Stay one step ahead of the market. Register with us today to receive property alters before the portals.

Register your details and property criteria below, and we will send you updates about homes that match your search criteria.

Tip: You can add multiple options/criteria after registration.