Sold

62 George Street

Alva, FK12 5AP
Scroll

62 George Street

62 George Street

Alva, FK12 5AP

Offers Over £335,000

CLOSING DATE THURSDAY 4TH DECEMBER AT 12 NOON

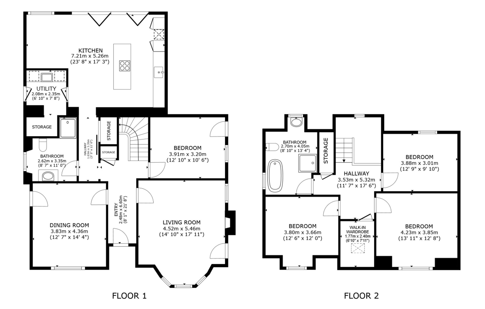
This impressive detached traditional property offers generous living space with a wonderfully modern extension to the rear. Internally the house boasts many charming original features. The entrance vestibule, with its original Victorian floor tiles, opens into a bright and welcoming hall featuring an original wooden staircase, solid oak flooring, and a convenient storage cupboard.

The large lounge boasts an open fire and beautiful original cornicing, creating a warm and characterful setting. Two further spacious rooms—one currently used as a dining room and the other as a double bedroom—provide superb flexibility, ideal for entertaining, home working, hosting guests, or multigenerational living.

The downstairs accommodation was extended to the rear in 2021, enhancing the home’s flow and functionality. Continuing along the hall, there is a modern shower room followed by a bright and expansive kitchen/dining/family room. This contemporary space features bifold doors opening onto a large Indian Sandstone patio and an enclosed private garden with stunning views of the Ochil Hills. A separate utility room and a walk-in pantry add excellent convenience to everyday living.

Upstairs, the landing leads to three further double bedrooms, a dressing room, and a stylish family bathroom complete with a freestanding bath. Both front and rear gardens complement the home, which have been lovingly created over the years, with the easily maintained rear garden offering established shrubs, including a Wisteria-covered pergola, as well as a log store.

Externally, the property benefits from a double garage/workshop and a gated driveway providing ample off-street parking. Recent upgrades include double glazing, solar panels, and a Worcester boiler, all installed within the last few years, enhancing energy efficiency and overall comfort.

Thoughtfully maintained and beautifully presented, this home sits within an established residential area of Alva, surrounded by similar traditional properties and within easy walking distance of the primary school, Alva Academy, local shops, cafés, and everyday amenities.

Key Features

  • 4 Bedrooms
  • 2 Bathrooms
  • Detached House
  • Covered area approx. 2,012 sqft
  • Council Tax Band F

Interested in this Property?

Make an enquiry via email

"*" indicates required fields

This field is for validation purposes and should be left unchanged.
Please use valid format e.g. 07123456789, +44 7123456789, +447123456789 #123, (07123) 456 789, etc
GDPR Consent*

OR

Contact our local expert or request a callback

Julie Martin
t. 01786 471777
Email Julie Martin Request A Callback

Request A Call Back

"*" indicates required fields

This field is for validation purposes and should be left unchanged.
Please use valid format e.g. 07123456789, +44 7123456789, +447123456789 #123, (07123) 456 789, etc
GDPR Consent*

Featured Properties

Your saved properties

clyde logo white

Property Alerts.

Stay one step ahead of the market. Register with us today to receive property alters before the portals.

Register your details and property criteria below, and we will send you updates about homes that match your search criteria.

Tip: You can add multiple options/criteria after registration.