Sold

53a Haig Avenue

Stirling, FK8 1PT
Scroll

53a Haig Avenue

53a Haig Avenue

Stirling, FK8 1PT

Offers Over £125,000

Situated in an established residential area of Stirling, this purpose-built ground floor flat forms part of a two-storey semi-detached block. Offering well-proportioned accommodation, the property is ideal for a range of buyers seeking convenient, ground level living in a location with good access to everyday amenities.

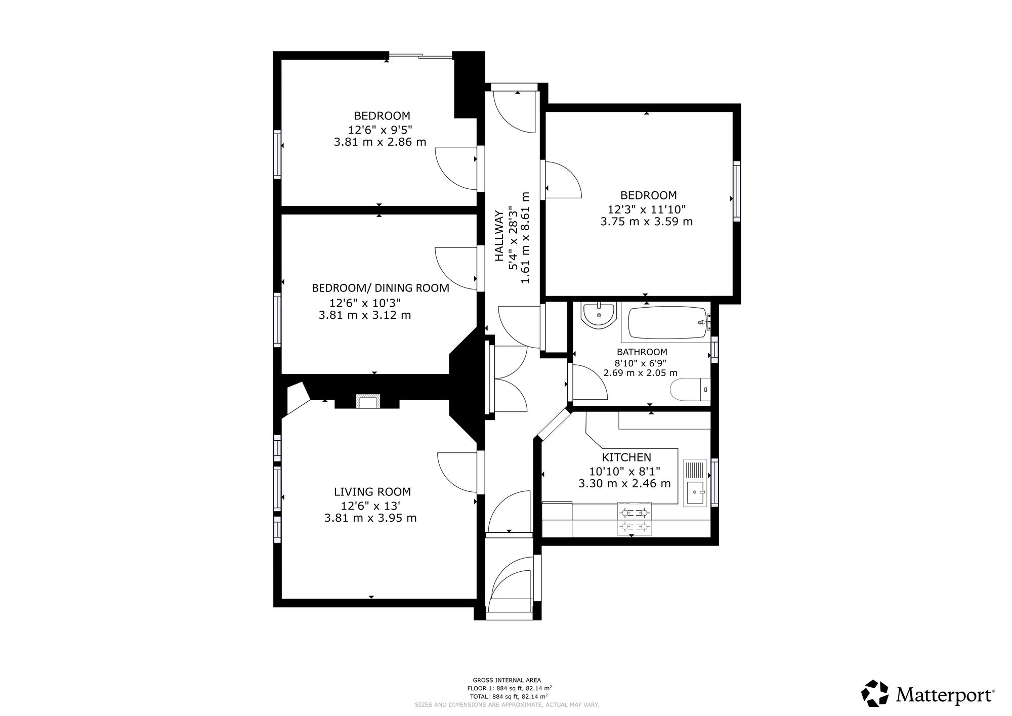
Internally, the flat comprises an entrance vestibule leading into a central hallway, providing access to all rooms. The lounge is a comfortable and spacious living area, while the kitchen is functional and well-suited for everyday use. There are three bedrooms, offering flexible space for sleeping, working, or additional storage, along with a family bathroom completing the internal layout.

The property enjoys an open outlook to a green space, creating a pleasant sense of openness to the front. Externally, there is private garden ground to the front and side, offering scope for outdoor seating or landscaping. There is also potential to create off-street parking, subject to any necessary permissions. To the rear, a shared drying green is complemented by two external stores belonging to the property, providing additional practical storage. The grounds are enclosed by a combination of mature hedging and wrought iron fencing, enhancing privacy and security.

The surrounding area consists of similar residential properties of comparable age and construction, contributing to a consistent streetscape. Local shops, schools, and public transport links are within easy reach, making this a practical and well-connected location for daily living.

Key Features

  • 3 Bedrooms
  • 1 Bathroom
  • Flat
  • Covered area approx. 710 sqft
  • Council Tax Band A

Interested in this Property?

Make an enquiry via email

"*" indicates required fields

This field is for validation purposes and should be left unchanged.
Please use valid format e.g. 07123456789, +44 7123456789, +447123456789 #123, (07123) 456 789, etc
GDPR Consent*

OR

Contact our local expert or request a callback

Carol Clydesdale
t. 01786 471777
Email Carol Clydesdale Request A Callback

Request A Call Back

"*" indicates required fields

This field is for validation purposes and should be left unchanged.
Please use valid format e.g. 07123456789, +44 7123456789, +447123456789 #123, (07123) 456 789, etc
GDPR Consent*

Featured Properties

Your saved properties

clyde logo white

Property Alerts.

Stay one step ahead of the market. Register with us today to receive property alters before the portals.

Register your details and property criteria below, and we will send you updates about homes that match your search criteria.

Tip: You can add multiple options/criteria after registration.