Under Offer

Cauldbarns Farm, Cauldbarns Farm

Stirling, FK7 8HH
Scroll

Cauldbarns Farm, Cauldbarns Farm

Cauldbarns Farm, Cauldbarns Farm

Stirling, FK7 8HH

Offers Over £385,000

Positioned in the peaceful countryside just outside Stirling, Cauldbarns Farm presents an excellent opportunity to enjoy rural living without giving up the convenience of urban amenities.

Surrounded by gently rolling farmland, this beautifully maintained farmhouse offers a perfect retreat from the rush of modern life. Despite its tranquil setting, the property is exceptionally well connected, with easy access to Stirling’s vibrant city centre, a range of shops, restaurants, and leisure facilities, as well as excellent transport links via the M9, M80, and Stirling railway station with regular services to both Edinburgh and Glasgow.

What truly sets this home apart are the panoramic views that stretch across the surrounding countryside. The ever changing landscape of fields and sky creates a superb backdrop that brings a sense of calm to everyday life.

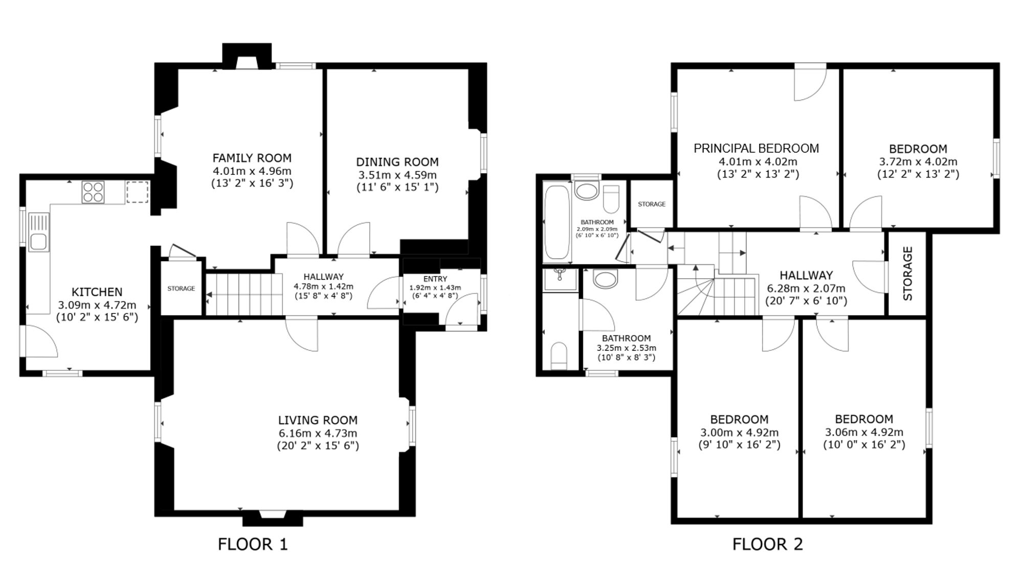
The home welcomes you through a traditional entrance vestibule, leading into a bright and spacious hallway that sets the tone for the rest of the property. A generous dining room offers the perfect setting for family meals or entertaining guests, while the main lounge and a separate, cosy sitting room provide relaxed spaces for both quiet moments and social gatherings. At the heart of the home lies a fully fitted, farmhouse style kitchen that effortlessly blends rustic charm with modern functionality, creating a warm and inviting space for everyday life.

Upstairs, the home continues to impress with four well proportioned double bedrooms, each offering ample space and tranquil views over the surrounding landscape. A stylish family bathroom and a separate guest shower room ensure comfort and practicality, while abundant built in storage throughout the house helps to keep living spaces organised and clutter-free. The property is warmed by oil-fired central heating and features double glazing throughout for comfort all year round.

Outside, the grounds are just as impressive. A manicured lawns stretches across the front and side of the home, framed by mature borders filled with colourful shrubs and seasonal blooms. At the rear, there is ample off-street parking and convenient outdoor storage. A charming patio area extends from the side of the house, creating a private suntrap that’s ideal for relaxing, dining, or simply enjoying the peace and quiet of the countryside.

Cauldbarns Farm also enjoys a prime location for families and commuters alike. Stirling’s historic city centre offers a wide range of shopping, business, and recreational amenities, while nearby primary and secondary schools provide excellent options for education. For outdoor enthusiasts, the property is on the doorstep of some of Scotland’s most stunning landscapes, including the Trossachs and Loch Lomond National Park, making it a perfect base for hiking, cycling, and weekend adventures.

Cauldbarns Farm is more than just a home - it’s a lifestyle. Combining rural tranquillity with modern comfort and accessibility, this exceptional property offers a rare chance to embrace the best of both worlds.

Key Features

  • 4 Bedrooms
  • 2 Bathrooms
  • Detached House
  • Covered area approx. 1,969 sqft

Interested in this Property?

Make an enquiry via email

"*" indicates required fields

This field is for validation purposes and should be left unchanged.
Please use valid format e.g. 07123456789, +44 7123456789, +447123456789 #123, (07123) 456 789, etc
GDPR Consent*

OR

Contact our local expert or request a callback

Carol Clydesdale
t. 01786 471777
Email Carol Clydesdale Request A Callback

Request A Call Back

"*" indicates required fields

This field is for validation purposes and should be left unchanged.
Please use valid format e.g. 07123456789, +44 7123456789, +447123456789 #123, (07123) 456 789, etc
GDPR Consent*

Featured Properties

Your saved properties

clyde logo white

Property Alerts.

Stay one step ahead of the market. Register with us today to receive property alters before the portals.

Register your details and property criteria below, and we will send you updates about homes that match your search criteria.

Tip: You can add multiple options/criteria after registration.