Under Offer

24 Chisholm Avenue

Stirling, FK9 5QT
Scroll

24 Chisholm Avenue

24 Chisholm Avenue

Stirling, FK9 5QT

Offers Over £240,000

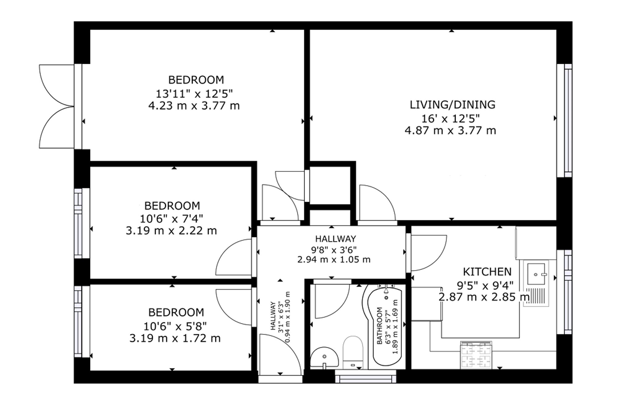
This immaculate three-bedroom bungalow, set within the highly sought-after Chisholm Avenue in Causewayhead, offers a superb blend of modern living and picturesque surroundings.

Beautifully presented throughout, the property boasts a bright and spacious living room, flooded with natural light and providing an inviting space for both relaxing and entertaining. The newly installed kitchen is stylish and fully integrated, featuring contemporary fittings and ample storage, making it as practical as it is attractive.

The accommodation comprises three well-proportioned bedrooms, each offering comfort and versatility. The largest bedroom is a particular highlight, complete with elegant French doors that open directly onto the rear garden, creating a seamless connection between indoor and outdoor living.

Externally, the property truly excels. The fully enclosed rear garden is a real suntrap, ideal for enjoying long summer days, outdoor dining, or simply unwinding in a peaceful setting. From here, you can take in excellent views towards Stirling Castle, adding a unique and scenic backdrop.

Further benefits include a detached single garage and generous driveway parking, comfortably accommodating up to four vehicles.

This exceptional home combines immaculate presentation, modern conveniences, desirable location, and stunning views, making it an ideal choice for a wide range of buyers.

Key Features

  • 3 Bedrooms
  • 1 Bathroom
  • Detached Bungalow
  • Covered area approx. 645 sqft
  • Council Tax Band D

Interested in this Property?

Make an enquiry via email

"*" indicates required fields

This field is for validation purposes and should be left unchanged.
Please use valid format e.g. 07123456789, +44 7123456789, +447123456789 #123, (07123) 456 789, etc
GDPR Consent*

OR

Contact our local expert or request a callback

Sophie Bechelli
Email Sophie Bechelli Request A Callback

Request A Call Back

"*" indicates required fields

This field is for validation purposes and should be left unchanged.
Please use valid format e.g. 07123456789, +44 7123456789, +447123456789 #123, (07123) 456 789, etc
GDPR Consent*

Featured Properties

Your saved properties

clyde logo white

Property Alerts.

Stay one step ahead of the market. Register with us today to receive property alters before the portals.

Register your details and property criteria below, and we will send you updates about homes that match your search criteria.

Tip: You can add multiple options/criteria after registration.