Under Offer

28 Rowallan Drive

Bannockburn, Stirling, FK7 8LN
Scroll

28 Rowallan Drive

28 Rowallan Drive

Bannockburn, Stirling, FK7 8LN

Offers Over £295,000

Set within the residential area of Bannockburn, this detached villa enjoys an attractive position within a quiet cul-de-sac, offering a well-balanced setting combining a peaceful environment with convenient access to local amenities and transport links.

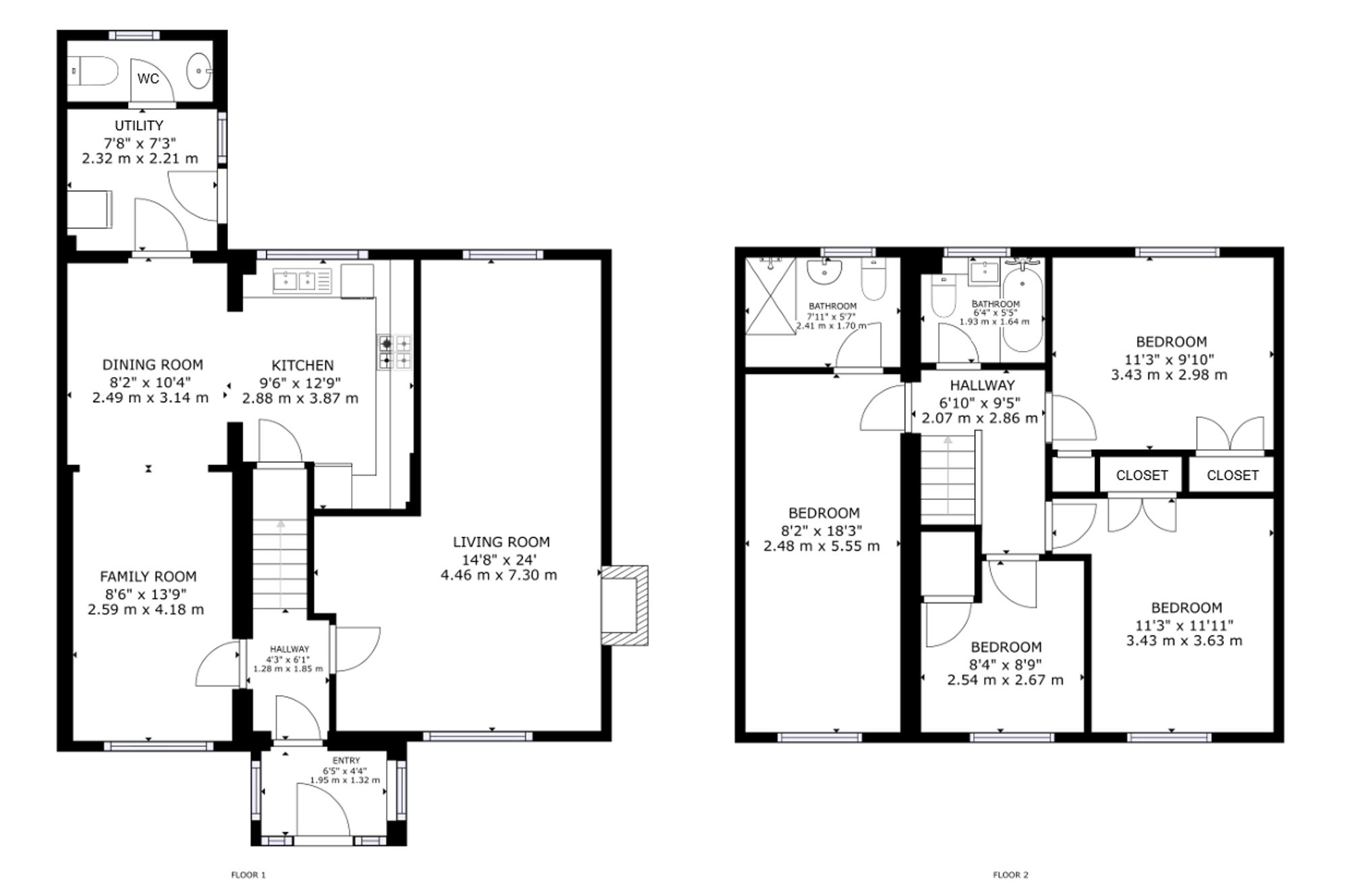
The ground floor opens with an entrance vestibule leading into a bright and comfortable lounge to the right. To the left, a second sitting room leads into an open-plan kitchen and dining area, creating a practical space suited to everyday living. A utility room provides additional storage and laundry space, while a ground floor WC adds convenience.

Upstairs, the property offers four bedrooms, including a spacious principal bedroom with en-suite shower room. The remaining bedrooms are well-proportioned and flexible, with one ideal for use as a home office or study. A family bathroom completes the upper level.

Externally, the property sits within private gardens. The rear garden features a combination of lawn and patio, offering space for outdoor seating. The grounds are enclosed by fencing and hedging, providing privacy. To the front, a driveway offers off-street parking and includes an electric vehicle charging point.

Bannockburn is a well-connected area on the outskirts of Stirling, offering a range of local shops, schools, and everyday amenities. Stirling city centre is within easy reach, along with excellent transport links to Glasgow, Edinburgh and Perth.

Key Features

  • 4 Bedrooms
  • 3 Bathrooms
  • Detached House
  • Covered area approx. 1,334 sqft
  • Council Tax Band F

Interested in this Property?

Make an enquiry via email

"*" indicates required fields

This field is for validation purposes and should be left unchanged.
Please use valid format e.g. 07123456789, +44 7123456789, +447123456789 #123, (07123) 456 789, etc
GDPR Consent*

OR

Contact our local expert or request a callback

Sophie Bechelli
Email Sophie Bechelli Request A Callback

Request A Call Back

"*" indicates required fields

This field is for validation purposes and should be left unchanged.
Please use valid format e.g. 07123456789, +44 7123456789, +447123456789 #123, (07123) 456 789, etc
GDPR Consent*

Featured Properties

Your saved properties

clyde logo white

Property Alerts.

Stay one step ahead of the market. Register with us today to receive property alters before the portals.

Register your details and property criteria below, and we will send you updates about homes that match your search criteria.

Tip: You can add multiple options/criteria after registration.