Sold

4 Lyon Cottages

Killin, FK21 8TG
Scroll

4 Lyon Cottages

4 Lyon Cottages

Killin, FK21 8TG

Offers Over £168,000

This charming two-storey mid-terrace cottage is ideally situated in the heart of the picturesque village of Killin, nestled within the stunning Loch Lomond & The Trossachs National Park. The property offers a blend of traditional character and modern living, making it an ideal home or holiday retreat in a highly sought-after conservation area.

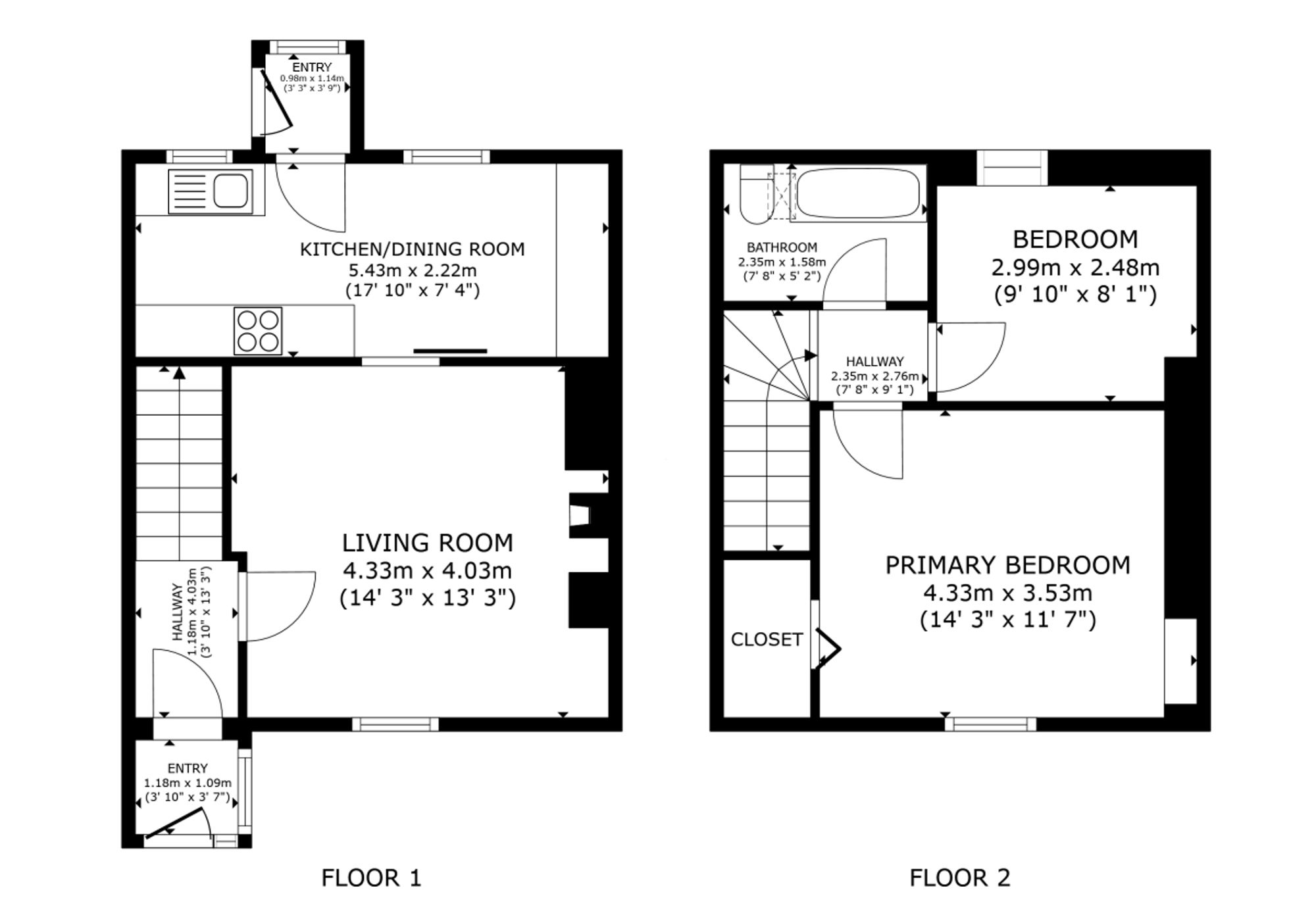
On the ground floor, you enter through a welcoming porch into a hallway that leads to a spacious living room filled with natural light. The open-plan kitchen and dining area provide a practical and sociable space, equipped with ample storage and work surfaces, perfect for family meals or entertaining guests. A rear porch creates a seamless flow between indoor and outdoor living. The first floor comprises two well-sized bedrooms, both benefiting from views over the surrounding village and countryside, along with a well-appointed family bathroom. The large attic, which has already been floored, offers excellent potential for conversion.

The cottage enjoys private garden areas to the front and rear, offering space for outdoor relaxation or gardening, while a good-sized communal drying green is also available, with exceptional views of the surrounding hills.

Parking is conveniently located to the rear of the property, accessible via a private lane, providing secure off-street parking. The cottage is positioned just a short walk from Killin’s main thoroughfare, where residents can find local shops, cafes, and essential amenities. Known for its scenic beauty and outdoor activities, Killin is a popular destination for tourists, making this property an excellent opportunity for a peaceful village lifestyle or a successful holiday let.

Key Features

  • 2 Bedrooms
  • 1 Bathroom
  • Mid-Terraced House
  • Covered area approx. 785 sqft
  • Council Tax Band C

Interested in this Property?

Make an enquiry via email

"*" indicates required fields

This field is for validation purposes and should be left unchanged.
Please use valid format e.g. 07123456789, +44 7123456789, +447123456789 #123, (07123) 456 789, etc
GDPR Consent*

OR

Contact our local expert or request a callback

Carol Clydesdale
t. 01786 471777
Email Carol Clydesdale Request A Callback

Request A Call Back

"*" indicates required fields

This field is for validation purposes and should be left unchanged.
Please use valid format e.g. 07123456789, +44 7123456789, +447123456789 #123, (07123) 456 789, etc
GDPR Consent*

Featured Properties

Your saved properties

clyde logo white

Property Alerts.

Stay one step ahead of the market. Register with us today to receive property alters before the portals.

Register your details and property criteria below, and we will send you updates about homes that match your search criteria.

Tip: You can add multiple options/criteria after registration.