Under Offer

Ellaslea House

Yetts Of Muckhart, Dollar, FK14 7JT
Scroll

Ellaslea House

Ellaslea House

Yetts Of Muckhart, Dollar, FK14 7JT

Offers Over £789,500

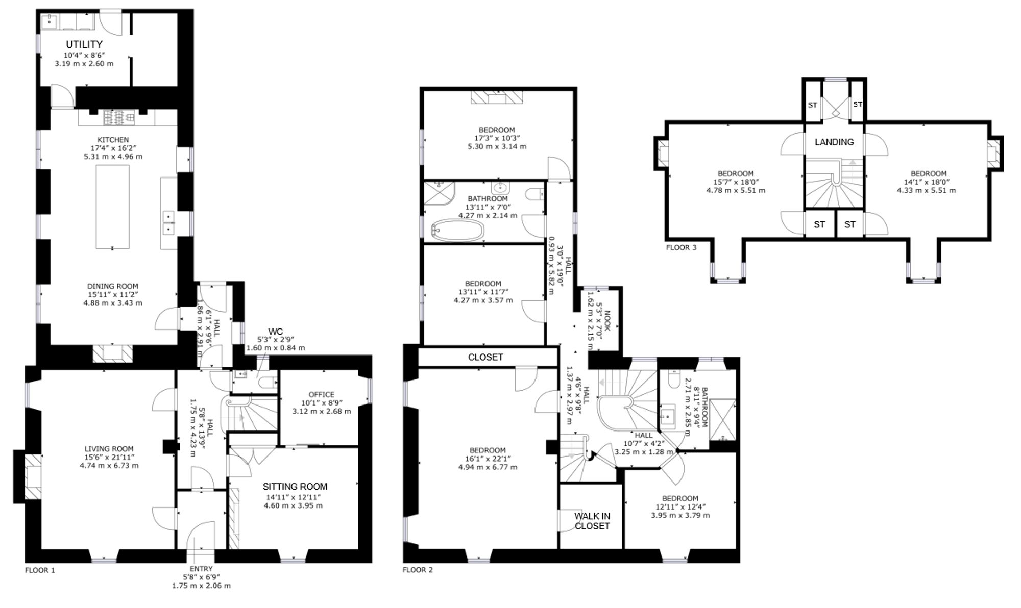
This exceptional stone built Georgian farmhouse, dating back to the 1750s, is a remarkable example of period architecture seamlessly blended with contemporary living. Extending to over 3,200 square feet of beautifully presented accommodation arranged over three levels, the property offers an abundance of space, character and versatility, ideal for modern family life while retaining the elegance and craftsmanship of its heritage.

Constructed in traditional stone with classic Georgian symmetry, the home immediately impresses with its timeless façade and welcoming presence. Internally, the property boasts six generously proportioned bedrooms, three well appointed bathrooms, and three substantial reception rooms, each rich in original features. High ceilings, deep set windows, detailed cornicing and feature fireplaces create a sense of grandeur, while tasteful upgrades ensure comfort and efficiency throughout.

The three reception rooms provide superb flexibility for both formal entertaining and relaxed family living. Whether enjoying a quiet evening by the fire, hosting guests, or creating a dedicated study or playroom, these elegant spaces adapt effortlessly to changing needs.

A particular highlight of the home is the magnificent 450 square foot open-plan kitchen and dining room, the true heart of the property. Thoughtfully designed to combine scale with warmth, this impressive space offers ample room for cooking, dining and socialising. Contemporary cabinetry and quality appliances sit harmoniously alongside traditional elements, while generous work surfaces and storage make it as practical as it is stylish. Large windows draw in natural light and provide delightful views across the garden grounds, creating a bright and inviting atmosphere ideal for everyday living and entertaining alike.

The upper floors continue to impress, with six well proportioned bedrooms offering flexibility for family accommodation, guest rooms or home working. The three bathrooms are finished to a high standard, balancing period character with modern convenience.

Externally, the property is enveloped by substantial walled garden grounds, forming a wonderfully private courtyard setting. These mature gardens provide a tranquil retreat, perfect for outdoor dining, gardening enthusiasts, or simply enjoying the summer sun in complete seclusion. The sense of privacy and shelter created by the traditional stone walls enhances the property’s charm and exclusivity.

Situated in Yetts O’Muckhart, the location perfectly complements the home’s character. This picturesque setting offers a peaceful village aesthetic, surrounded by beautiful countryside, whilst remaining within easy driving distance of Stirling city centre and the highly regarded Dollar Academy. It is a rare opportunity to acquire a distinguished period residence that offers both rural tranquillity and convenient access to amenities and schooling.

This outstanding home represents a unique blend of history, space and modern comfort, a truly special home of lasting appeal.

Key Features

  • 6 Bedrooms
  • 3 Bathrooms
  • Detached Villa
  • Covered area approx. 3,283 sqft

Interested in this Property?

Make an enquiry via email

"*" indicates required fields

This field is for validation purposes and should be left unchanged.
Please use valid format e.g. 07123456789, +44 7123456789, +447123456789 #123, (07123) 456 789, etc
GDPR Consent*

OR

Contact our local expert or request a callback

Tara Sinclair
t. 01786 471777
Email Tara Sinclair Request A Callback

Request A Call Back

"*" indicates required fields

This field is for validation purposes and should be left unchanged.
Please use valid format e.g. 07123456789, +44 7123456789, +447123456789 #123, (07123) 456 789, etc
GDPR Consent*

Featured Properties

Your saved properties

clyde logo white

Property Alerts.

Stay one step ahead of the market. Register with us today to receive property alters before the portals.

Register your details and property criteria below, and we will send you updates about homes that match your search criteria.

Tip: You can add multiple options/criteria after registration.