Under Offer

36 Pelstream Avenue

Stirling, FK7 0BE
Scroll

36 Pelstream Avenue

36 Pelstream Avenue

Stirling, FK7 0BE

Offers Over £285,000

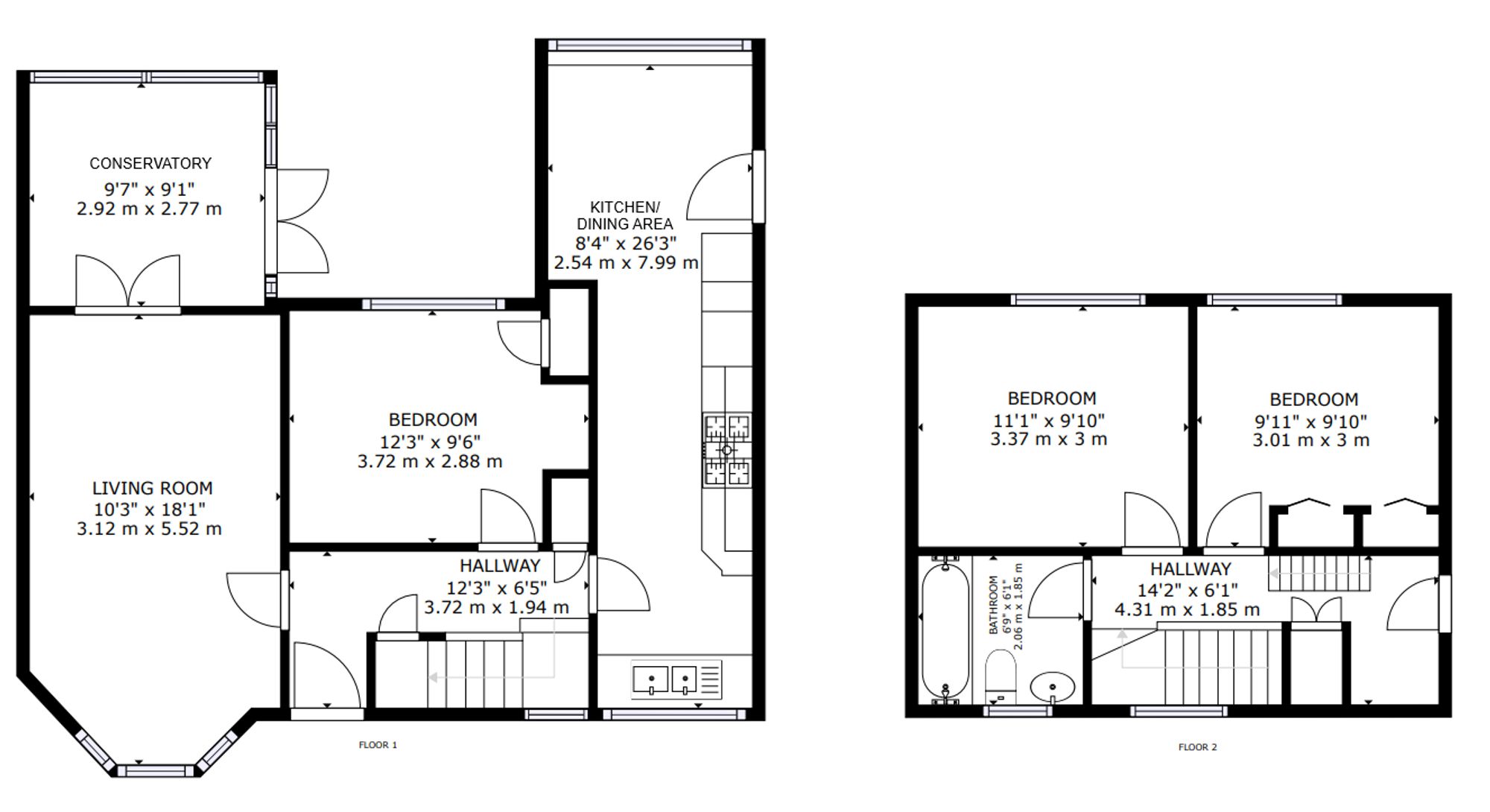
Nestled within the highly desirable Pelstream Avenue in Stirling, this beautifully presented three-bedroom detached home offers generous living space, exceptional versatility, and a magnificent south-facing garden — perfect for modern family life.

From the outset, the property enjoys an attractive setting within one of Stirling’s most sought-after residential pockets, known for its peaceful surroundings while remaining conveniently close to local amenities, reputable schooling, and excellent transport links.

The welcoming entrance hall leads to a bright and spacious main living area, ideal for both relaxing evenings and entertaining guests. Large windows flood the home with natural light, enhancing the sense of space throughout.

A standout feature is the well-proportioned third bedroom located on the ground floor. This flexible room could serve equally well as a comfortable guest bedroom, home office, study, or snug — perfectly suited to today’s hybrid working lifestyle.

To the rear, the property truly comes into its own. The conservatory overlooks the remarkable south-facing garden and provides a wonderful additional reception space, ideal for enjoying the garden all year round. Whether used as a dining area, reading room, or peaceful retreat, it creates a seamless connection between indoor and outdoor living.

The expansive south-facing garden is a rare and enviable feature. Bathed in sunlight throughout the day, it offers exceptional space for families, gardening enthusiasts, or those who love to entertain. The generous sun terrace provides the perfect setting for summer dining, barbecues, and relaxing with family and friends.

Upstairs, two further comfortable bedrooms offer well-balanced accommodation, each providing ample space for freestanding furniture. The layout is ideal for growing families or visiting guests.

A thoughtfully converted loft space adds valuable additional square footage. Currently utilised as a versatile bonus area, it would make an excellent children’s playroom, hobby room, or substantial storage area — offering flexibility to adapt as your needs evolve.

This delightful detached home combines space, flexibility, and an exceptional garden in one of Stirling’s most popular residential locations. With adaptable living areas, a superb south-facing aspect, and the added benefit of a converted loft, it presents an outstanding opportunity for families and professionals alike.

Early viewing is highly recommended to fully appreciate the lifestyle this wonderful home has to offer.

Key Features

  • 3 Bedrooms
  • 1 Bathroom
  • Detached House
  • Covered area approx. 1,560 sqft
  • Council Tax Band E

Interested in this Property?

Make an enquiry via email

"*" indicates required fields

This field is for validation purposes and should be left unchanged.
Please use valid format e.g. 07123456789, +44 7123456789, +447123456789 #123, (07123) 456 789, etc
GDPR Consent*

OR

Contact our local expert or request a callback

Tara Sinclair
t. 01786 471777
Email Tara Sinclair Request A Callback

Request A Call Back

"*" indicates required fields

This field is for validation purposes and should be left unchanged.
Please use valid format e.g. 07123456789, +44 7123456789, +447123456789 #123, (07123) 456 789, etc
GDPR Consent*

Featured Properties

Your saved properties

clyde logo white

Property Alerts.

Stay one step ahead of the market. Register with us today to receive property alters before the portals.

Register your details and property criteria below, and we will send you updates about homes that match your search criteria.

Tip: You can add multiple options/criteria after registration.