Under Offer

29 Pine Crescent

Menstrie, FK11 7DT
Scroll

29 Pine Crescent

29 Pine Crescent

Menstrie, FK11 7DT

Offers Over £320,000

Set within the highly regarded Menstrie Mains development in the popular Hillfoots village of Menstrie, this impressive detached villa offers spacious and versatile accommodation extending to approximately 129m², ideally suited to modern family living. The property enjoys a convenient position with easy access to local amenities and transport links, while nearby Stirling provides a wider range of shopping, leisure and schooling options.

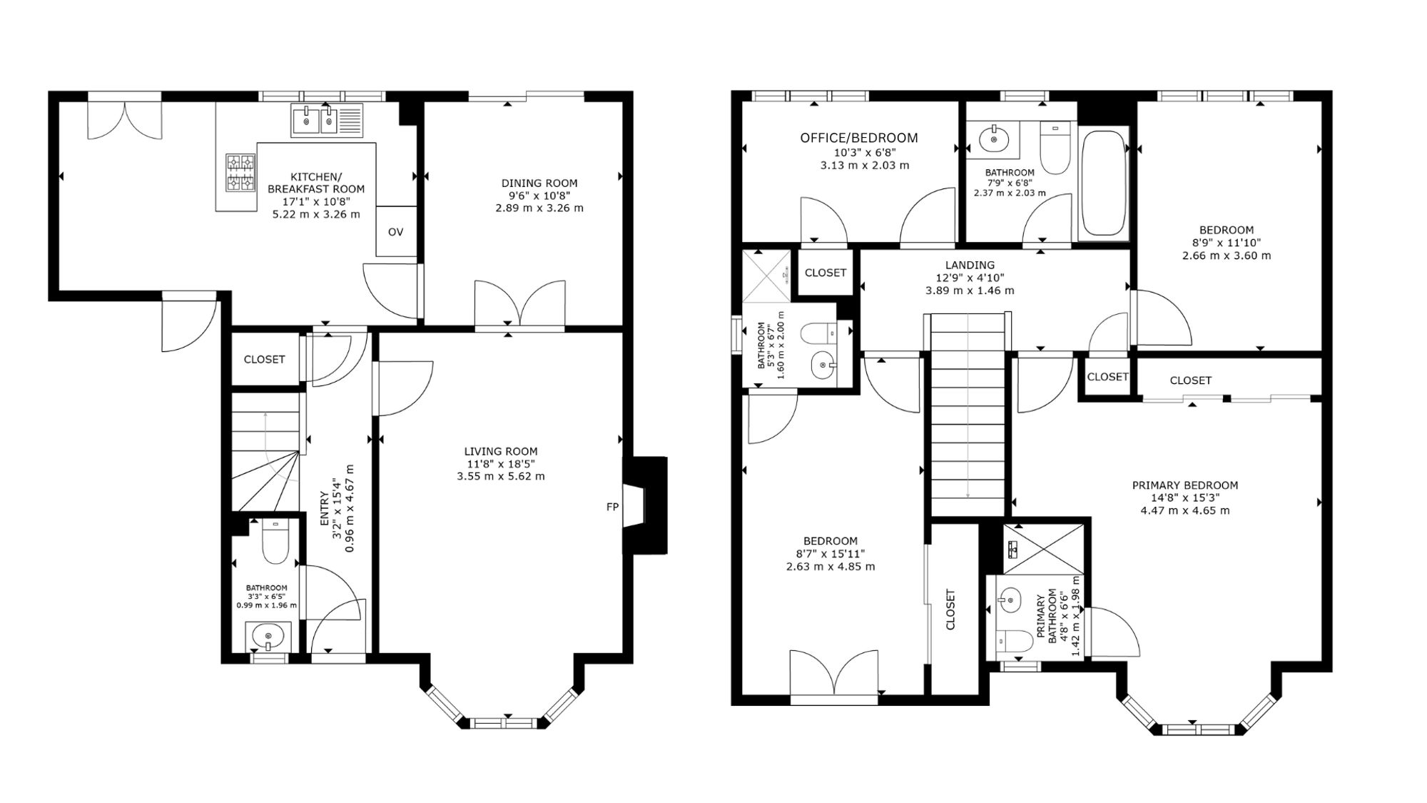
The accommodation on the ground floor opens with a welcoming entrance hall leading through to a bright and comfortable lounge, where a gas fireplace creates a warm focal point. A separate dining room provides an excellent space for entertaining, while the generous kitchen/diner is well laid out for everyday family life, offering ample room for both cooking and informal dining. A convenient ground floor toilet completes the lower level.

Upstairs, the property continues to impress with a well-proportioned landing leading to four bedrooms. The master bedroom benefits from its own ensuite shower room, as does the guest bedroom, offering flexibility for visiting family or guests. Two further bedrooms are served by a family bathroom, all finished to a good standard.

Externally, the property sits within private garden grounds to the front, side and rear, bounded by brick walls and timber fencing. The south-facing rear garden is a particular highlight, enjoying views towards the Ochil Hills and acting as a real suntrap, ideal for outdoor relaxation and entertaining. Off-street parking is available via a private driveway to the front, along with the added benefit of an integral garage.

Overall, this is a well-proportioned and attractive family home in a sought-after location, offering excellent indoor and outdoor space.

Key Features

  • 4 Bedrooms
  • 4 Bathrooms
  • Detached House
  • Covered area approx. 1,388 sqft
  • Council Tax Band F
  • Parking Driveway
  • Garden

Interested in this Property?

Make an enquiry via email

"*" indicates required fields

This field is for validation purposes and should be left unchanged.
Please use valid format e.g. 07123456789, +44 7123456789, +447123456789 #123, (07123) 456 789, etc
GDPR Consent*

OR

Contact our local expert or request a callback

Sophie Bechelli
Email Sophie Bechelli Request A Callback

Request A Call Back

"*" indicates required fields

This field is for validation purposes and should be left unchanged.
Please use valid format e.g. 07123456789, +44 7123456789, +447123456789 #123, (07123) 456 789, etc
GDPR Consent*

Featured Properties

Your saved properties

clyde logo white

Property Alerts.

Stay one step ahead of the market. Register with us today to receive property alters before the portals.

Register your details and property criteria below, and we will send you updates about homes that match your search criteria.

Tip: You can add multiple options/criteria after registration.